- Chủ đầu tư: Mr Ngân
- Địa chỉ Biên Hòa
- Diện tích: 90
- Mã số: 515
Thông tin thiết kế nhà phố 4 tầng mặt tiền Pháp anh Ngân
- Dự án thiết kế nhà phố 6 tầng mặt tiền 4.5m có chừa sân
- Chủ đầu tư: Anh Ngân
- Phong cách nhà kiểu pháp hiện đại 4.5x20m
- Quy mô 1 hầm nổi +1 trệt + 4 lầu + 1 áp mái sân thượng
- Diện tích tổng thể: 4.5x27m.
- Diện tích mỗi sàn: 90m2 xây dựng
- Phong thủy nhà ở hướng Đông – Đông Nam
- Năm thực hiện: 2019 – 2020 thời gian khoảng 7 tháng
- Đơn vị thực hiện: Công ty thiết kế xây dựng Nhà Đẹp Mới
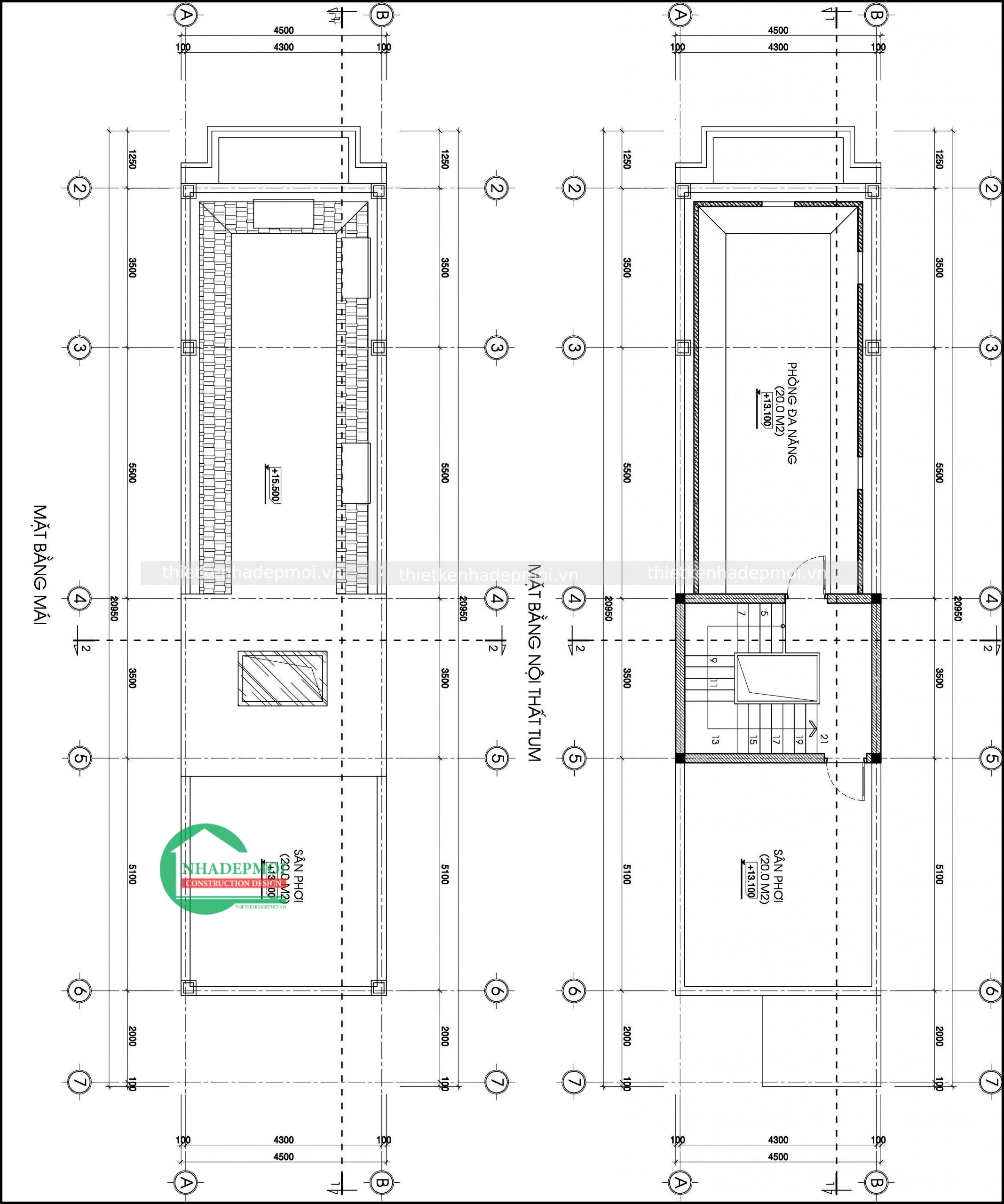
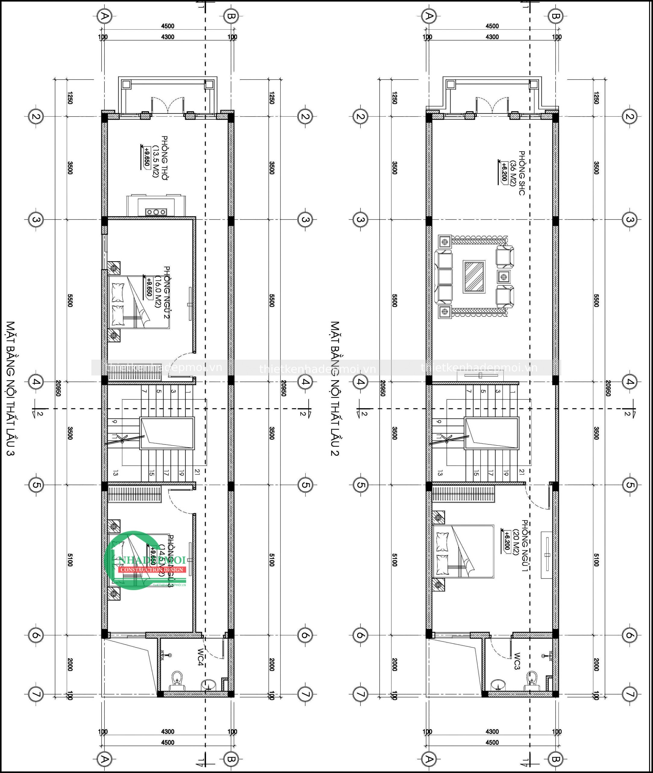
Tiện ích mặt bằng nhà phố bán cổ điển đẹp 4 tầng kiểu Pháp
Mẫu nhà ống 4 tầng kiểu cổ điển mặt tiền 4.5m hội tụ nhiều yếu tố quan trọng. Cần thiết cho một mẫu mặt tiền nhà phố bán cổ điển đẹp. Phía ngoài có sân rộng và cổng cũng như tường rào. Phía sau chừa gần 2m lối thoát hiểm + sân nắng giếng trời. Cùng với đó là giải pháp xây nhà phố 1 trệt 4 lầu 1 sân thượng có giếng trời.
Ngôi nhà phố 4 tầng mặt tiền 4,5m này đảm bảo khẩu độ không gian sinh hoạt thoáng mát. Chiều cao thông thủy cầu thang 21 bậc chuẩn phong thủy cũng như sự tiện ích. Anh chị tham khảo các mặt bằng hồ sơ bản vẽ mẫu nhà phố đẹp 4 tầng kiến trúc Pháp hiện đại thanh thoát dành cho đất chiều ngang 4m đến 5m này
Ngoài mẫu nhà phố bán cổ điển 1 trệt 4 lầu 1 sân thượng anh Ngân ra. Nếu anh chị cần tham khảo các mẫu mặt tiền nhà phố kiến trúc pháp đẹp ngang rộng 6m đến 8m xin mời tham khảo các mẫu nhà phố đẹp hiện đại phong cách tân cổ điển kiểu Pháp trên chuyên mục website NHÀ ĐẸP MỚI chúng tôi. CÁM ƠN.!Số lần xem: 33











