- Chủ đầu tư: Mr Hùng
- Địa chỉ Đồng Nai
- Diện tích: 55
- Mã số: 1029
Thông tin thiết kế nhà mặt tiền 4m kinh doanh hiện đại
Mẫu nhà 4 tầng đẹp có diện tích xây sàn 55m2. Phong cách nhà ống hiện đại mái bằng có sân thượng. Bản vẽ tthiết kế vừa ở vừa kinh doanh Rượu ngoại nhập khẩu và Hồng Sâm Hàn Quốc anh Hùng- Công trình thiết kế xây nhà mặt phố 4.5m x 12m
- Chủ đầu tư: Anh Hùng
- Địa chỉ: Biên Hòa - Đồng Nai
- Thiết kế: KTS Mạnh
- Năm thực hiện: 2019
- Bản quyền: Công ty cổ phần NHÀ ĐẸP MỚI
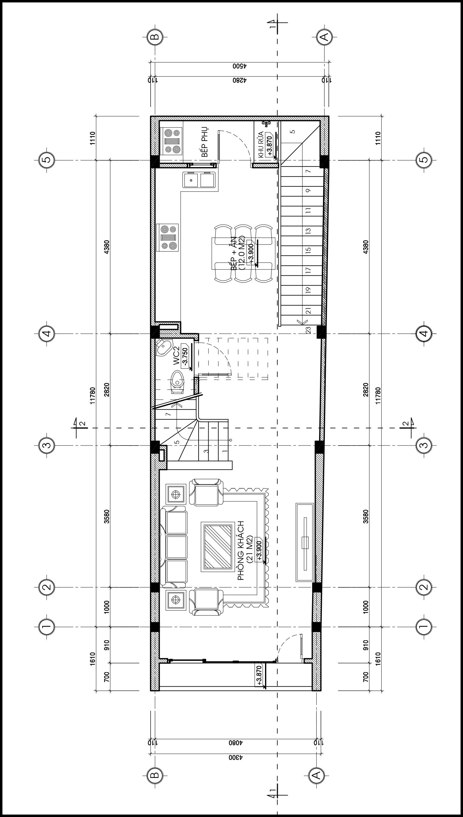
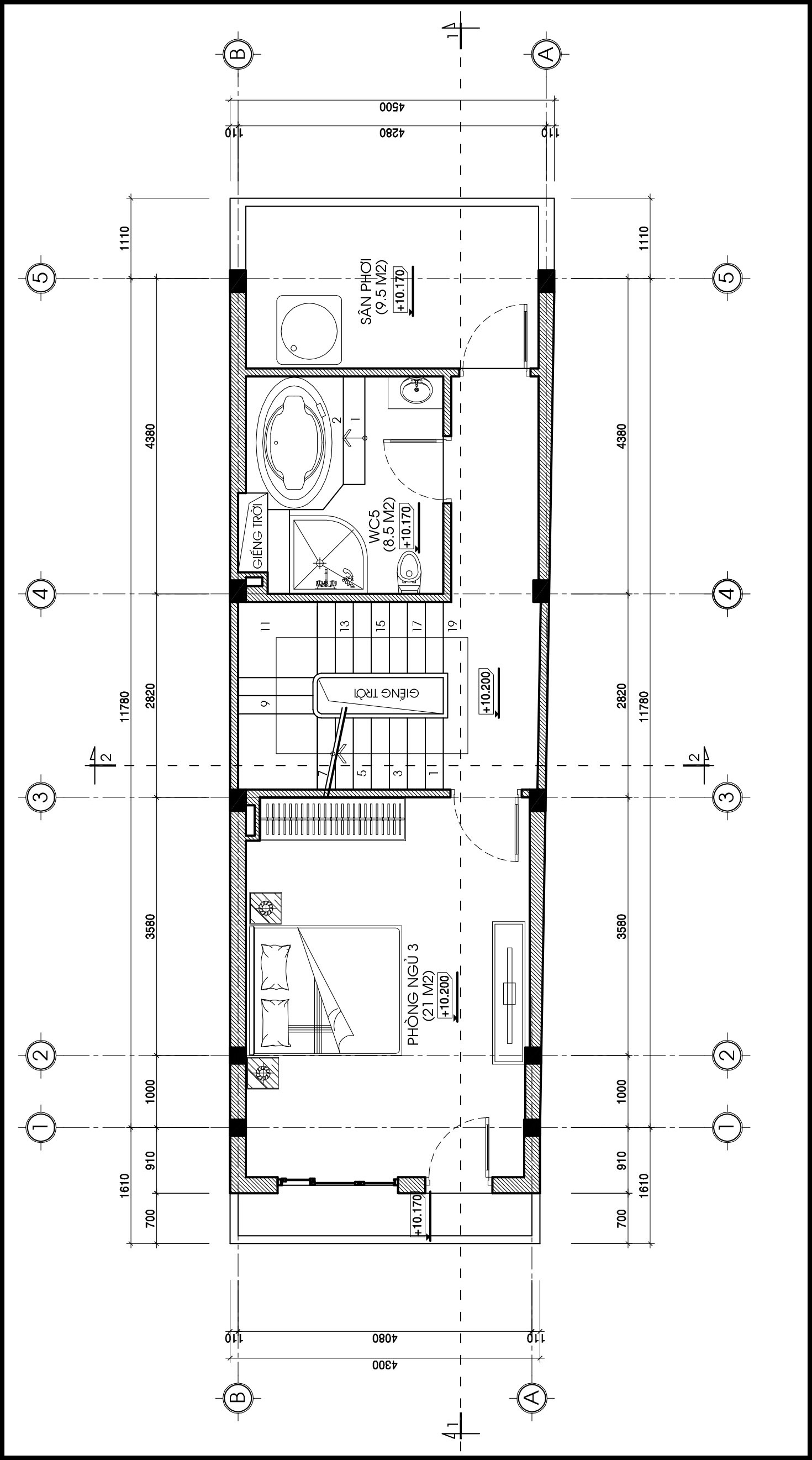
Mẫu nhà phố 4 tầng đẹp rộng hơn 4.5m thiết kế theo phong cách nhà lệch tầng đẹp. Có nghĩa là từ tầng hầm đến tầng 1 sử dụng chung 1 cầu thang phía sau. Nhưng bắt đầu từ tầng 2 trở lên tầng 5 có thêm cầu thang ở giữa nhà Mặt bằng bản vẽ nhà ống mặt tiền 4.5m hiện đại 50m2
Mặt bằng nội thất nhà ống 5 tầng đẹp của gia đình anh Hùng có tầng hầm rộng để hầm rượu 37m2 đi từ tầng 1 đi xuống ở không gian phía sau cầu thang góc tối ưu diện tích. Cơ cấu như sau- Tầng hầm: Rượu + để xe
- Trệt: Văn phòng thu ngân + Khu bán hàng trưng bày sản phẩm
- Lầu 1: Phòng khách Bếp ăn
- Lầu 2: 2 phòng ngủ master
- Lầu 3: 1 phòng ngủ master. 1 phòng xông hơi, giặt ủi, tắm master
- Lầu 4: Sân thượng, phòng thờ, sân phơi, kho
Tư vấn xây nhà ống có tầng hầm mặt tiền 4.5m vừa ở vừa kinh doanh lệch tầng 55m2
Bản vẽ nhà ống 4 tầng hiện đại 4.5x12m có đầy186 bản vẽ chi tiết thi công xây dựng. Cũng như hồ sơ xin phép xây dựng nhà phố có tầng hầm 38m2. Bao gồm mặt cắt, mặt đứng, bản vẽ thi công cầu thang nhà ống. Bản vẽ chi tiết cửa, dầm sàn bể phốt, cấp thoát nước, điện chiếu sáng..
Tổng chiều cao của mẫu nhà phố đẹp 5 tầng rộng 4m lên đến 16,4m khống chế không cho xây cao hơn. Sử dụng vữa xi măng cát vàng M75 dày trung bình 25mm. Cách chống thấm nhà 55m2 đẹp bằng 3 lớp SiKa, bê tông sỉ nẹ tôn nền. Hợp với nền đất cứng tự nhiên giải pháp móng chỉ cần đá dăm. Bạn cũng đừng quên tưới nước đầm chặt nhé. Xử lý giúp chống mối mọt và xử lý các vấn đề móng không bị nứt mẻ sau vài năm sử dụng
Trên đây là bản vẽ hồ sơ mẫu nhà mặt tiền 4,5m 4 tầng hiện đại. Thiết kế dành cho nhà mặt phố 55m2 vừa ở vừa kinh doanh anh Hùng. Ngoài bản vẽ thiết kế nhà phố 1 trệt 3 lầu 1 sân thượng này ra. Mời anh chị tham khảo những mẫu nhà phố hiện đại kiến trúc 2 3 4 5 tầng khác của công ty chúng tôi.Số lần xem: 19











