- Chủ đầu tư: Chị Mỹ Dung
- Địa chỉ Quận 9
- Diện tích: 4,8x15 m2
- Mã số: 7429

Thông tin cơ bản mẫu nhà hiện đại tầng lửng (5-15)m
| Chủ đầu tư | Chị Mỹ Dung |
| Địa chỉ | Quận 9 |
| Phong cách | Nhà ống hiện đại |
| Số tầng | 3 tầng |
| Diện tích | 4,8x15 m2 |
| Đơn vị thiết kế | Nhà Đẹp Mới |
| Năm thiết kế | 2021 |
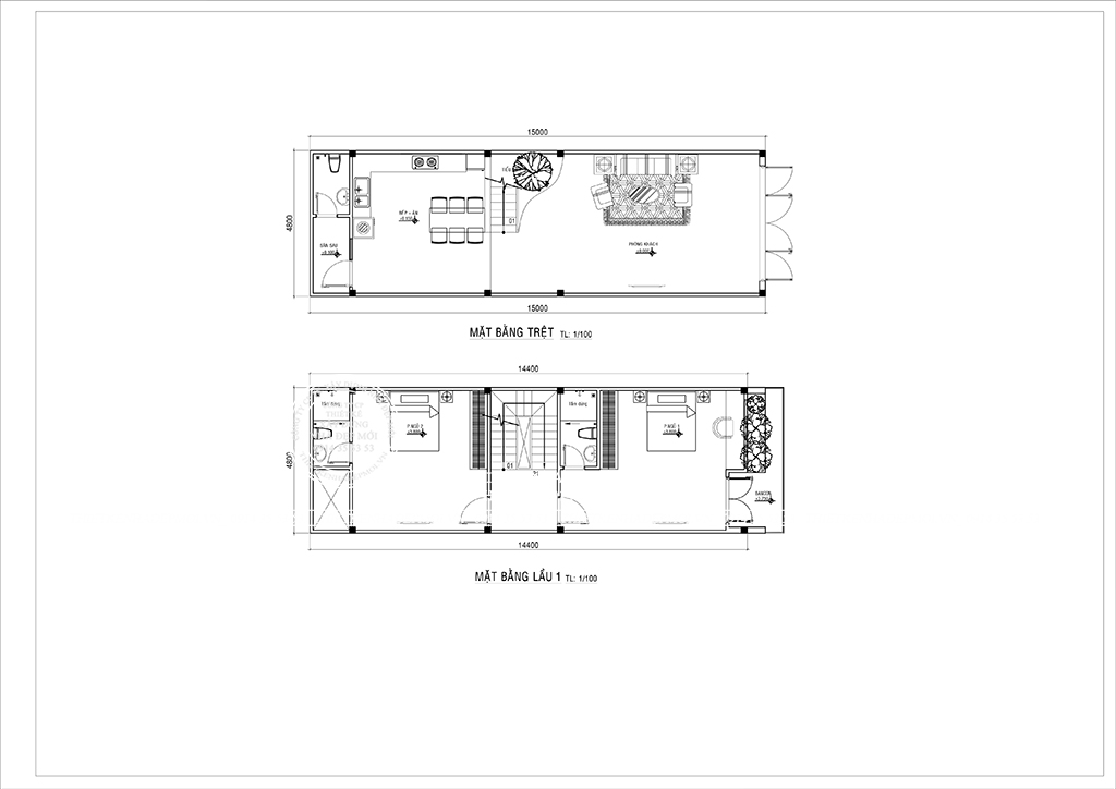
| Công năng | Tầng trệt: Phòng khách, phòng bếp, 1 nhà vệ sinh, sân sau Lầu 1: 2 phòng ngủ, 2 nhà vệ sinh Lầu 2: 1 phòng ngủ, 1 nhà vệ sinh, phòng thờ, phòng kho |

Phối cảnh ngoại thất 3D thiết kế nhà đẹp 3 tầng
Mẫu nhà 3 tầng hiện đại được sử dụng lối kiến trúc hiện đại, đơn giản khỏe khoắn mang đến sự vững chãi và bề thế. Ngoại thất gây ấn tượng bởi những hình khối đa diện tinh tế, thiết kế giật cấp sáng tạo đánh lừa thị giác giúp ngôi nhà trở nên thoáng đãng và rộng rãi hơn. Căn nhà phố nổi bật giữa không gian với màu sắc trang nhã, thanh thoát và cực kỳ ưa nhìn. Tone màu trắng làm chủ đạo là lựa chọn hàng đầu của các thiết kế nhà phố hiện đại và cách sử dụng màu sắc này luôn tạo được hiệu ứng thẩm mỹ theo mong muốn của gia chủ. Ngoài ra sự tone màu đen của hệ hiên và hệ cửa càng góp phần hoàn thiện vẻ đẹp hiện đại, sang trọng cho công trình.
Bố trí công năng sinh hoạt mẫu nhà 3 tầng hiện đại
Để đáp nhu cầu sinh hoạt của các thành viên trong gia đình chị Mỹ Dung KTS đã bố trí công năng thiết kế nhà đẹp 3 tầng như sau:Tầng trệt

Lầu 1
Không gian lầu 1 là 2 phòng ngủ tiện nghi có nhà vệ sinh riêng biệt đảm bảo sự riêng tư cho các thành viên. Một phòng ngủ gần với ban công là không gian để mọi người có thể tận hưởng thư giãn, hóng gió.Lầu 2

Số lần xem: 16











