- Chủ đầu tư: Anh Mỹ
- Địa chỉ Phan Thiết
- Diện tích: 13,3 x 14
- Mã số: 3328
Thông tin chi tiết thiết kế biệt thự đẹp 3 tầng
| Chủ đầu tư | Anh Mỹ |
| Địa chỉ | Phan Thiết |
| Phong cách | Tân cổ điển |
| Quy mô | 3 tầng |
| Phong cách | Biệt thự hiện đại |
| Đơn vị thiết kế | Nhà Đẹp Mới |
| Năm thiết kế | 2020 |
| Công năng | Tầng 1: Phòng khách, phòng thờ, Phòng ngủ, nhà vệ sinh chung, Phòng bếp-phòng ăn. Tầng 2: Phòng sinh hoạt chung, 1 phòng ngủ master có nhà vệ sinh khép kín, 3 phòng ngủ, 1 nhà vệ sinh chung. Tầng 3: Phòng đa năng, sân chơi, phòng giải trí , phòng kho, sân phơi. |
Sau khi làm việc với anh Mỹ để nắm bắt yêu cầu của anh đối với thiết kế ngôi nhà của mình. KTS đã gửi đến gia chủ mẫu biệt thự đẹp 3 tầng với thiết kế theo phong cách hiện đại đáp ứng được mong muốn về một ngôi biệt thự mang tính thẩm mỹ và đầy đủ công năng.
Khám phá mặt tiền thiết kế biệt thự đẹp 3 tầng
Biệt thự hiện đại 3 tầng được sử dụng màu sơn nhẹ nhàng mang đến vẻ đẹp dịu dàng tinh tế càng nhìn càng say đắm. Thiết kế theo phong cách hiện đại KTS sử dụng những chi tiết đơn giản không cầu kỳ hoa văn nhưng vẫn tạo nên sức hấp dẫn kỳ lạ cho căn biệt thự. Điểm nhấn của căn nhà là những chiếc cột trụ tròn và vuông được khéo léo bố trí kết hợp với nhau vừa tăng tính thẩm mỹ đồng thời tạo nên sự vững chắc và đồ sộ bề thế cho căn nhà.

Mô tả mặt bằng thiết kế biệt thự đẹp 3 tầng
Tầng 1
Mặt bằng tầng 1 được bố trí một bên là phòng khách ngay sau cánh cửa chính với không gian được trang trí sang trọng có đủ các nội thất hiện đại. Sau phòng khách đi vào bên trong là phòng bếp và phòng ăn thông nhau khá rộng rãi và thoáng mát. Đối diện phòng bếp là một phòng ngủ , nhà vệ sinh chung ở ngay cạnh phòng ngủ để thuận tiện sử dụng và ở giữa là cầu thang thông tầng. Phía ngoài phòng ngủ đối diện phòng khách được thiết kế làm phòng thờ gia tiên của gia chủ.
Tầng 2

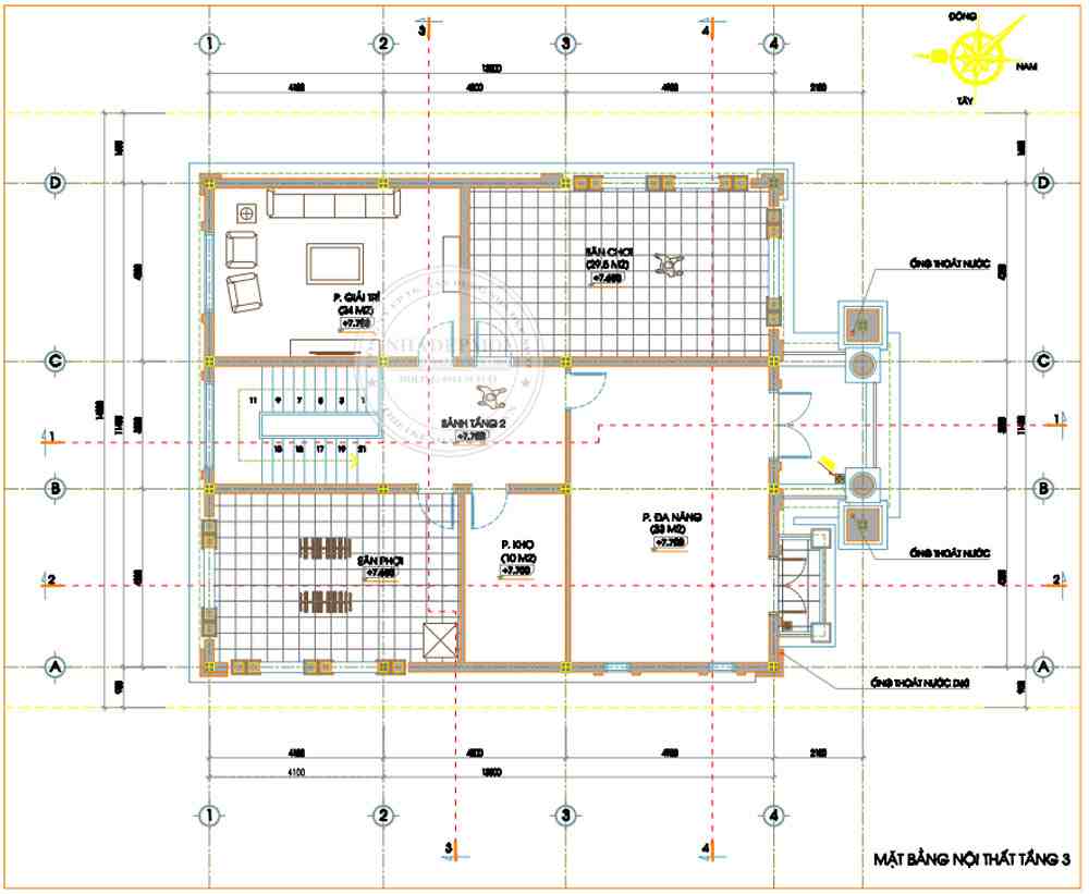
Tầng 3
Tầng này sẽ có 1 phòng đa năng để luyện tập thể dục thể thao, tập gym hoặc thực hiện các hoạt động khác cho các thành viên trong gia đình. 1 phòng giải trí đáp ứng nhu cầu nghỉ ngơi, thư giãn giải trí, 1 phòng kho để đựng đồ đạc. Khu vực sân phơi đồ rộng rãi và còn có một sân chơi thoáng mát để cả gia đình cùng chơi đùa.
Các bạn có thể thấy rằng thiết kế biệt thự đẹp 3 tầng là không gian sống quá hoàn hảo cho nhiều gia đình trẻ hiện nay. Hãy liên hệ với Nhà Đẹp Mới để sở hữu những căn biệt thự tuyệt vời cho gia đình bạn.
>>> Xem thêm: Những mẫu biệt thự đẹp xu hướng 2020
Chi tiết xin liên hệ: THIẾT KẾ NHÀ ĐẸP MỚI Hotline: 0914 35 53 53
Số lần xem: 33











