- Chủ đầu tư: Anh Sách
- Địa chỉ Bà Rịa
- Diện tích: 36x14m
- Mã số: 6678
1. Hình ảnh mẫu biệt thự sân vườn 1 tầng
Trong những năm gần đây mẫu biệt thự sân vườn 1 tầng được thiết kế theo kiến trúc hiện đại với sân vườn rộng rãi đang trở thành tổ ấm lý tưởng được các chủ đầu tư yêu thích. Mẫu biệt thự sở hữu không gian sống trong lành thoáng mát, gần gũi với thiên nhiên. Đồng thời đáp ứng các nhu cầu công năng sinh hoạt mang đến một cuộc sống tiện nghi thỏa mãn thị hiếu của nhiều gia đình. Hãy cùng tham khảo tuyệt phẩm thiết kế biệt thự 1 tầng dưới đây của Nhà Đẹp Mới để có nhiều ý tưởng cho ngôi nhà mơ ước của mình nhé.
2. Thông tin cơ bản thiết kế biệt thự đẹp
| Chủ đầu tư | Anh Sách |
| Địa chỉ | Bà Rịa |
| Phong cách | Biệt thự sân vườn |
| Số tầng | 1 tầng |
| Diện tích | 36 x 14 m2 |
| Đơn vị thiết kế | Nhà Đẹp Mới |
| Năm thiết kế | 2021 |
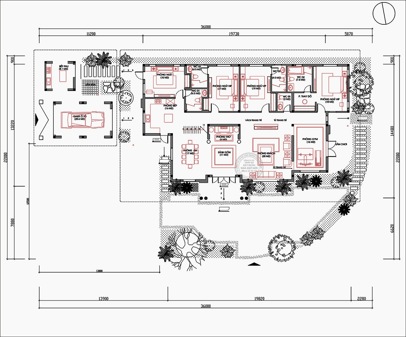
| Công năng | Khối nhà chính: Phòng khách, phòng thờ, phòng ăn, phòng bếp, phòng gym, 4 phòng ngủ, 5 nhà vệ sinh. Khối tiểu cảnh vườn: Gara, bếp nhỏ, sân rửa Sân vườn lớn xung quanh biệt thự |
3. Yêu cầu thiết kế biệt thự sân vườn
Gia đình anh Sách sở hữu mảnh đất khá rộng rãi và vuông vắn mong muốn của anh là xây dựng một căn biệt thự hiện đại, tiện nghi cho gia đình có sân vườn thoáng mát. Yêu cầu của gia chủ thiết kế không gian sống trên một mặt bằng để các thành viên có thể dễ dàng tương tác với nhau gắn kết tình cảm gia đình.
4. Phối cảnh 3D chi tiết mẫu biệt thự sân vườn 1 tầng
Biệt thự sân vườn 1 tầng của anh Sách được KTS sử dụng kiến trúc hiện đại trẻ trung và mang đến sự khỏe khắn, bề thế trong tổng thể công trình. Gam màu trắng thanh lịch, trang nhã làm chủ đạo tôn thêm vẻ đẹp sang trọng cho ngôi biệt thự. Hệ mái Thái màu đỏ nổi bật trên nền trắng nhẹ nhàng chính là sự kết hợp tinh tế trong việc phối hợp màu sắc tạo nên sự hoàn hảo về thẩm mỹ cho ngoại thất ngôi nhà. Đồng thời, đây cũng là màu sắc phù hợp với phong thủy, mệnh, tuổi của gia chủ.
5. Bố trí công năng sử dụng của mẫu biệt thự sân vườn
Công năng biệt thự sân vườn 1 tầng được KTS thiết kế tối ưu đáp ứng nhu cầu sinh hoạt cho gia đình anh Sách.
Số lần xem: 30











