- Chủ đầu tư: Chị Lâm
- Địa chỉ Tiền Giang
- Diện tích: 10,9x14,7 m2
- Mã số: 7168
Hình ảnh thiết kế biệt thự mái thái 2 tầng đẹp mắt
Trên khắp dải đất hình chữ S từ nam ra bắc các bạn có thể thấy những căn biệt thự mái thái xuất hiện ngày càng nhiều. Mỗi công trình được thiết kế với những phong cách đa dạng khác nhau nhưng đều có thể làm nổi bật được tính thẩm mỹ cùng không gian sống lý tưởng cho nhiều gia đình Việt. Trong bài viết hôm nay Nhà Đẹp Mới xin giới thiệu đến các bạn thiết kế biệt thự mái thái 2 tầng vừa được đội ngũ KTS hoàn thành và bàn giao cho chủ đầu tư. Hãy cùng tham khảo thiết kế này để có thêm nhiều ý tưởng cho ngôi nhà của mình nhé.
Thông tin cơ bản thiết kế biệt thự mái thái
| Chủ đầu tư | Chị Lâm |
| Địa chỉ | Tiền Giang |
| Phong cách | Biệt thự hiện đại mái thái |
| Số tầng | 2 tầng |
| Diện tích | 10,9x14,7 m2 |
| Đơn vị thiết kế | Nhà Đẹp Mới |
| Năm thiết kế | 2021 |
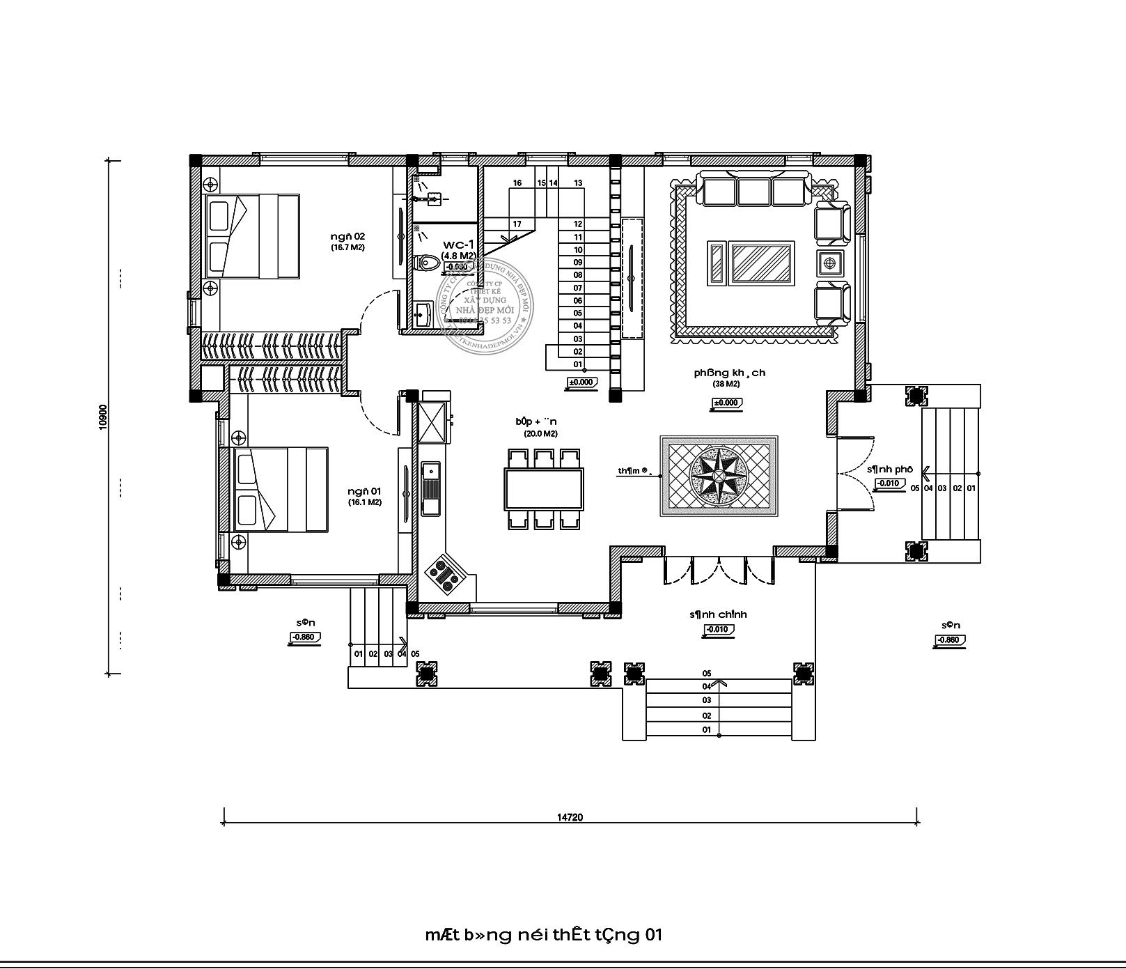
| Công năng | Tầng 1: 1 phòng khách, phòng bếp, 2 phòng ngủ, 1 nhà vệ sinh Tầng 2: Phòng thờ, khu vực sinh hoạt chung, 3 phòng ngủ, 3 nhà vệ sinh Tầng áp mái: 1 phòng ngủ, 1 sân phơi, không gian sinh hoạt chung, 1 nhà vệ sinh |
Ý tưởng thiết kế biệt thự 2 tầng mái thái
Chị Lâm trực tiếp liên hệ với Nhà Đẹp Mới và yêu cầu thiết kế cho chị căn biệt thự 2 tầng theo phong cách hiện đại. Ngoài ra theo chị tìm hiểu mái thái có khả năng chống thấm và chống nóng hiệu quả rất phù hợp với điều kiện khí hậu khắc nghiệt. Vì vậy chị đặc biệt yêu cầu phải sử dụng hệ mái thái cho căn biệt thự của mình.
Phối cảnh 3D ngoại thất biệt thự mái thái 2 tầng
Điểm ấn tượng đầu tiên khi chiêm ngưỡng mẫu biệt thự hiện đại mái thái 2 tầng đó chính là hệ mái thái đẳng cấp. Kiến trúc mái thái được thiết kế khối mái chữ A cân đối cùng khối đua rộng vừa đảm bảo có thể thoát nước nhanh về mùa mưa và thoáng mát về mùa hè. Bên cạnh đó KTS thiết kế hệ mái kiểu giật cấp làm tăng thêm tính thẩm mỹ cho căn biệt thự.

Mặt bằng công năng của mẫu biệt thự 2 tầng đẹp mắt
Sau khi đã chiêm ngưỡng vẻ đẹp hoàn hảo của ngoại thất mặt tiền hãy cùng khám phá công năng sinh hoạt của biệt thự mái thái 2 tầng đẹp mắt.Tầng 1

Tầng 2

Tầng áp mái

Số lần xem: 33











