- Chủ đầu tư: Anh Trung
- Địa chỉ Hậu Giang
- Diện tích: 8mx20m
- Mã số: 2563
Thông tin chi tiết mẫu biệt thự tân cổ điển 3 tầng đẹp
| Chủ đầu tư | Anh Trung |
| Địa chỉ | Hậu Giang |
| Phong cách | Biệt thự tân cổ điển |
| Số tầng | 3 tầng |
| Kích thước | 8mx20m |
| Đơn vị thiết kế | Nhà Đẹp Mới |
| Năm thiết kế | 2020 |
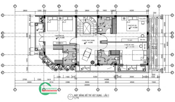
| Công năng | Tầng 1: Sân vườn, gara, phòng khách, phòng bếp-phòng ăn, phòng ngủ, nhà vệ sinh chung. Tầng 2: Phòng sinh hoạt chung, 2 phòng ngủ có nhà vệ sinh khép kín, 1 phòng ngủ, 1 nhà vệ sinh chung. Tầng 3: Sân thượng, phòng thờ, phòng ngủ master có nhà vệ sinh khép kín, nhà vệ sinh chung. |

Mô tả mặt tiền mẫu biệt thự cổ điển 3 tầng đẹp
Mặt tiền của mẫu biệt thự tân cổ điển đẹp được làm nổi bật với những hoa văn tinh xảo cùng gam màu trắng kinh điển vẫn được sử dụng làm tông màu chủ đạo cho kiến trúc cổ điển. Pha trộn vào màu trắng tinh khôi là các khung cửa sổ và những lan can ban công cùng chiếc cổng màu đen tuyền cực kỳ sang trọng, quý phái. Sự kết hợp này góp phần nâng tầm giá trị thẩm mỹ cho căn biệt thự.

Mô tả chi tiết mặt bằng mẫu biệt thự tân cổ điển 3 tầng
Mặt bằng tầng 1



Mặt bằng tầng 2 mẫu biệt thự tân cổ điển 3 tầng đẹp



Mặt bằng tầng 3

Số lần xem: 34











