- Chủ đầu tư: Anh Việt
- Địa chỉ Bình Dương
- Diện tích: 6,5x15
- Mã số: 11271

Thông tin cơ bản mẫu nhà phố hiện đại 1 trệt, 1 lầu, tum và sân thượng
| Chủ đầu tư | Anh Việt |
| Địa chỉ | Bình Dương |
| Phong cách | Nhà phố hiện đại |
| Số tầng | 1 trệt, 1 lầu, tum và sân thượng |
| Diện tích | 6,5x15m |
| Đơn vị thiết kế | Nhà Đẹp Mới |
| Năm thiết kế | 2023 |
| Công năng | + Tầng trệt: phòng khách, khu vực bếp, 1 nhà vệ sinh chung + Lầu 1: 3 phòng ngủ, 1 nhà vệ sinh chung, 1 khu vực sinh hoạt chung + Tum và sân thượng: Phòng thờ, kho, sân thượng khu vực BBQ |
Ý tưởng thiết kế nhà phố 1 trệt, 1 lầu, tum và sân thượng


Phối cảnh 3D thiết kế nhà phố hiện đại 1 trệt, 1 lầu, tum và sân thượng
Thiết kế nhà phố hiện đại sử dụng các hình khối tương đối đơn giản không có những chi tiết hoa văn rườm rà nhưng được bố trí một cách cân đối, hợp lý tạo nên sự nổi bật cho ngôi nhà. Điểm đặc biệt của công trình chính là KTS kết hợp nhiều hình khối khỏe khoắn, vững chắc cùng với các chi tiết trang trí độc đáo, mới lạ mang đến vẻ đẹp hiện đại, ấn tượng.


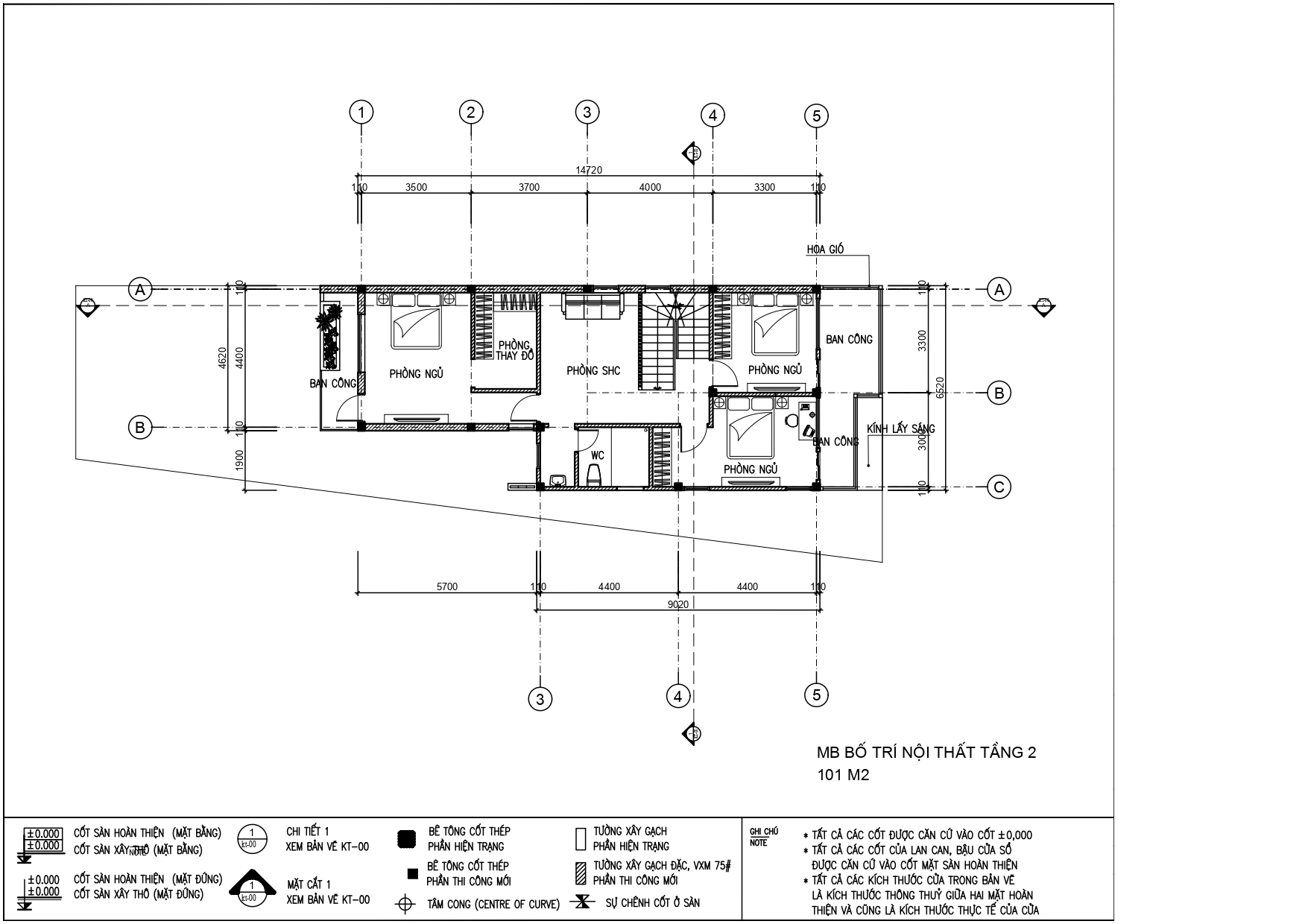
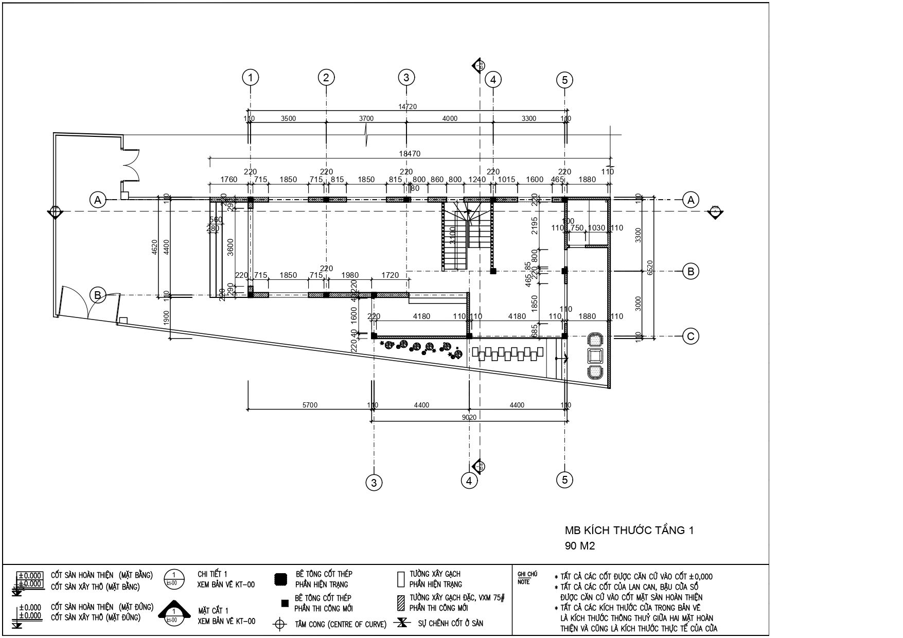
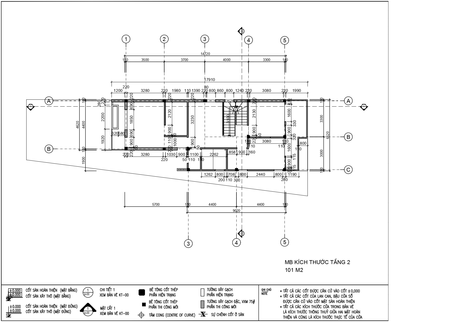
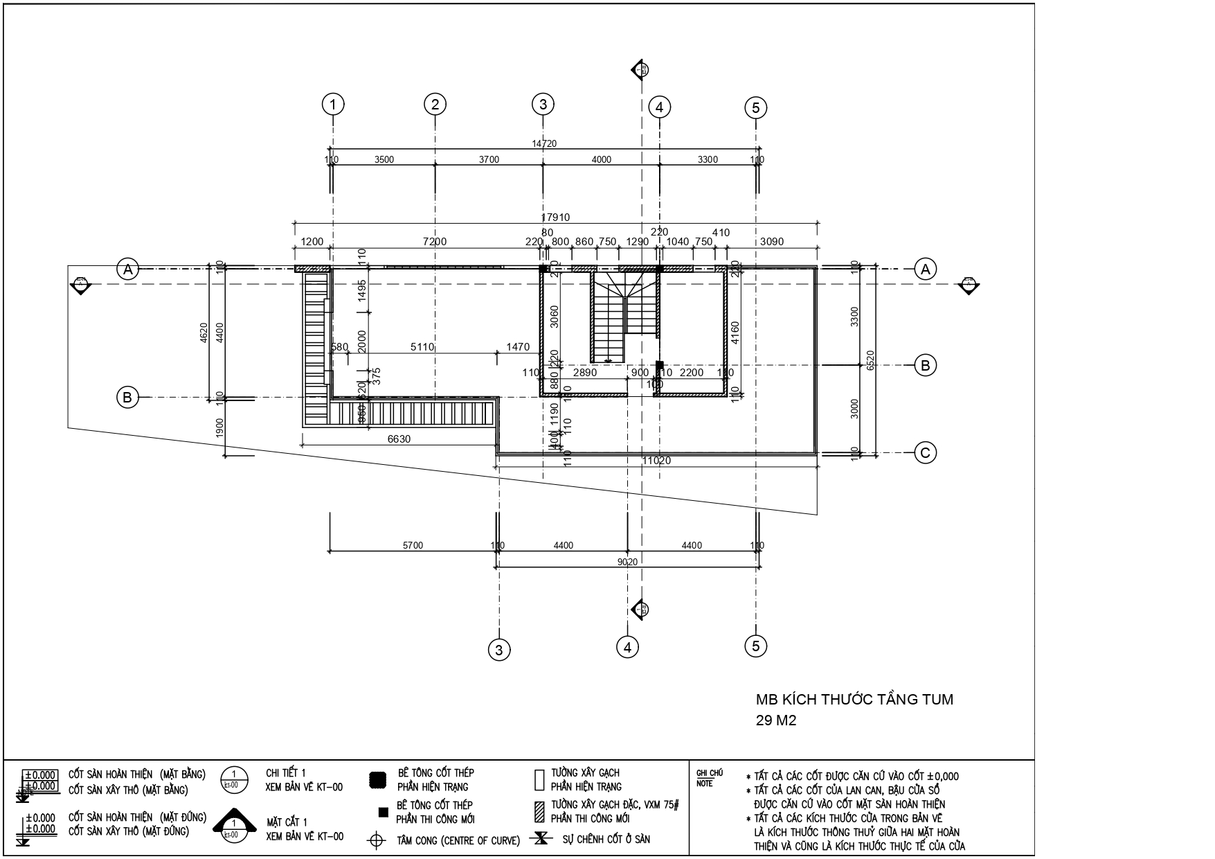
Bố trí mặt bằng công năng của nhà phố 1 trệt, 1 lầu, tum và sân thượng
Sau đây là bố trí mặt bằng công năng từng tầng của căn nhà được anh Việt vô cùng ưng ý:Tầng trệt
Mặt bằng tầng trệt được bố trí phòng khách với không gian rộng rãi, sang trọng ngay sau cửa chính. Tiếp theo là khu vực bếp và phòng ăn của gia đình rất tiện nghi và được thiết kế hợp lý, khoa học. Phía trong cùng có 1 phòng vệ sinh chung để mọi thành viên cùng sử dụng.Lầu 1
Lầu 1 chủ yếu sẽ là không gian nghỉ ngơi của cả gia đình gồm 3 phòng ngủ và 1 phòng vệ sinh chung. Ngoài ra còn có thêm 1 khu vực sinh hoạt chung để cả gia đình cùng nói chuyện, thư giãn dành thời gian chia sẻ với nhau.Tum và sân thượng
Không gian tum và sân thượng được sử dụng để bố trí phòng thờ, phòng kho đựng đồ. Đặc biệt phần sân thượng rộng rãi còn được thiết kế thêm khu vực BBQ cực kỳ lý tưởng để tổ chức những bữa tiệc vui vẻ, đầm ấm. Cùng xem mẫu vẽ măt bằng chi tiết:







Số lần xem: 15











