- Chủ đầu tư: Anh Nhân
- Địa chỉ Đồng Nai
- Diện tích: 9,5x23m
- Mã số: 8806
Hình ảnh khách sạn phong cách tân cổ điển tiện nghi, sang trọng
Trong nhiều năm trở lại đây ngành dịch vụ du lịch đang phát triển mạnh mẽ vì vậy mô hình kinh doanh khách sạn đang ngày càng phổ biến. Trong số những phong cách thiết kế đang được ưa chuộng nhất hiện nay phải kể đến phong cách tân cổ điển. Sự kết hợp hài hòa giữa nét cổ điển và sự cách tân của nét hiện đại mang đến phong cách kiến trúc sang trọng, độc đáo khiến nhiều chủ đầu tư yêu thích. Ngay sau đây mời các bạn cùng chiêm ngưỡng mẫu khách sạn phong cách tân cổ điển được Nhà Đẹp Mới thiết kế theo yêu cầu của anh Nhân tại Đồng Nai.
Thông tin cơ bản khách sạn phong cách tân cổ điển
| Chủ đầu tư | Anh Nhân |
| Địa chỉ | Thống Nhất, Đồng Nai |
| Phong cách | Khách sạn phong cách tân cổ điển |
| Số tầng | 1 trệt, 3 lầu, sân thượng |
| Diện tích | 9,5x23m |
| Đơn vị thiết kế | Nhà Đẹp Mới |
| Năm thiết kế | 2022 |
| Công năng | Số tầng: 1 trệt, 3 lầu, sân thượng, mái bê tông Số phòng: 25 phòng , 1 phòng bếp, Khu sảnh lớn |
Ý tưởng thiết kế khách sạn phong cách tân cổ điển


Phối cảnh 3D ngoại thất khách sạn phong cách tân cổ điển
Mặt tiền của khách sạn mang màu sắc vừa cổ kính vừa hiện đại tạo nên sức hút mạnh mẽ đánh gục mọi ánh nhìn. KTS đã khéo léo kết hợp các chi tiết trang trí hoa văn phào chỉ đơn giản nhưng đầy tinh tế để làm nổi bật mặt tiền của khách sạn. Đặc biệt tính đối xứng và cân bằng đặc trưng của phong cách tân cổ điển được thể hiện đậm nét qua hệ thống cột trụ, hoa văn và họa tiết trang trí. Điều này khiến cho tổng thể công trình luôn toát lên được vẻ đẹp hài hòa, cân đối.

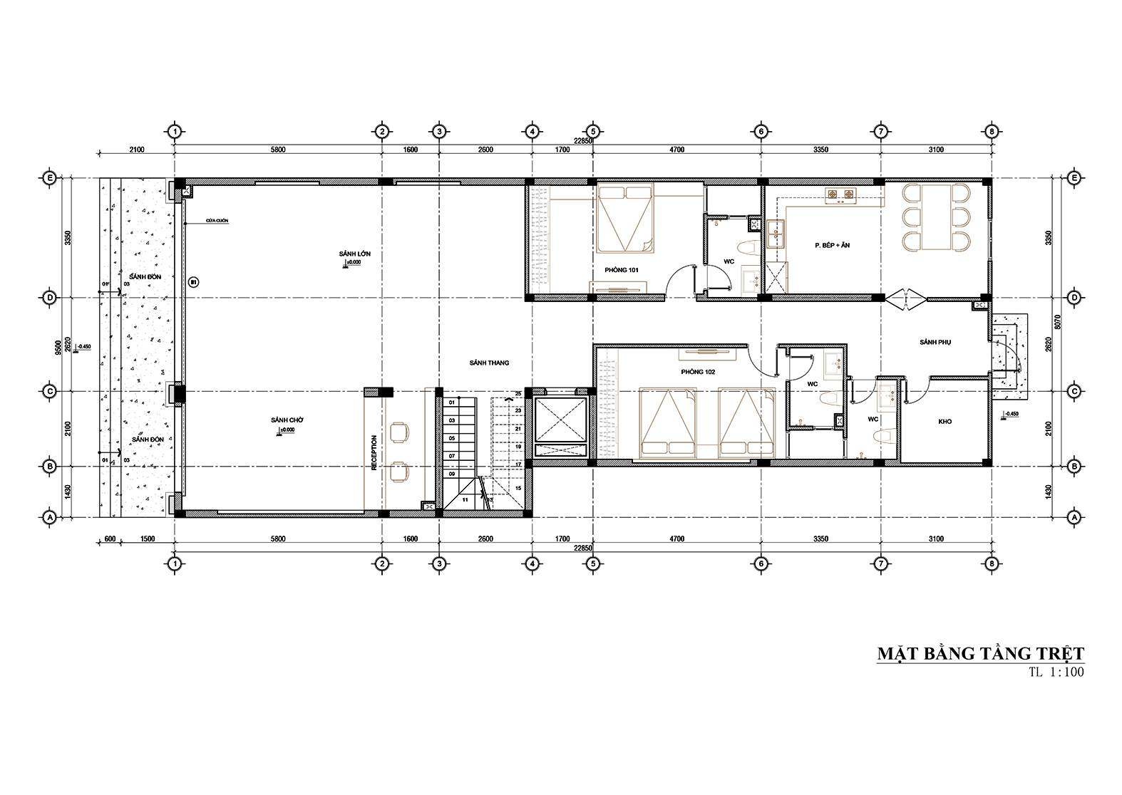
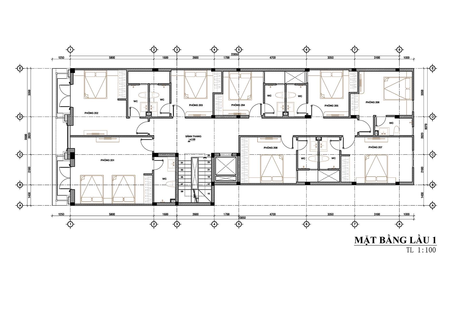
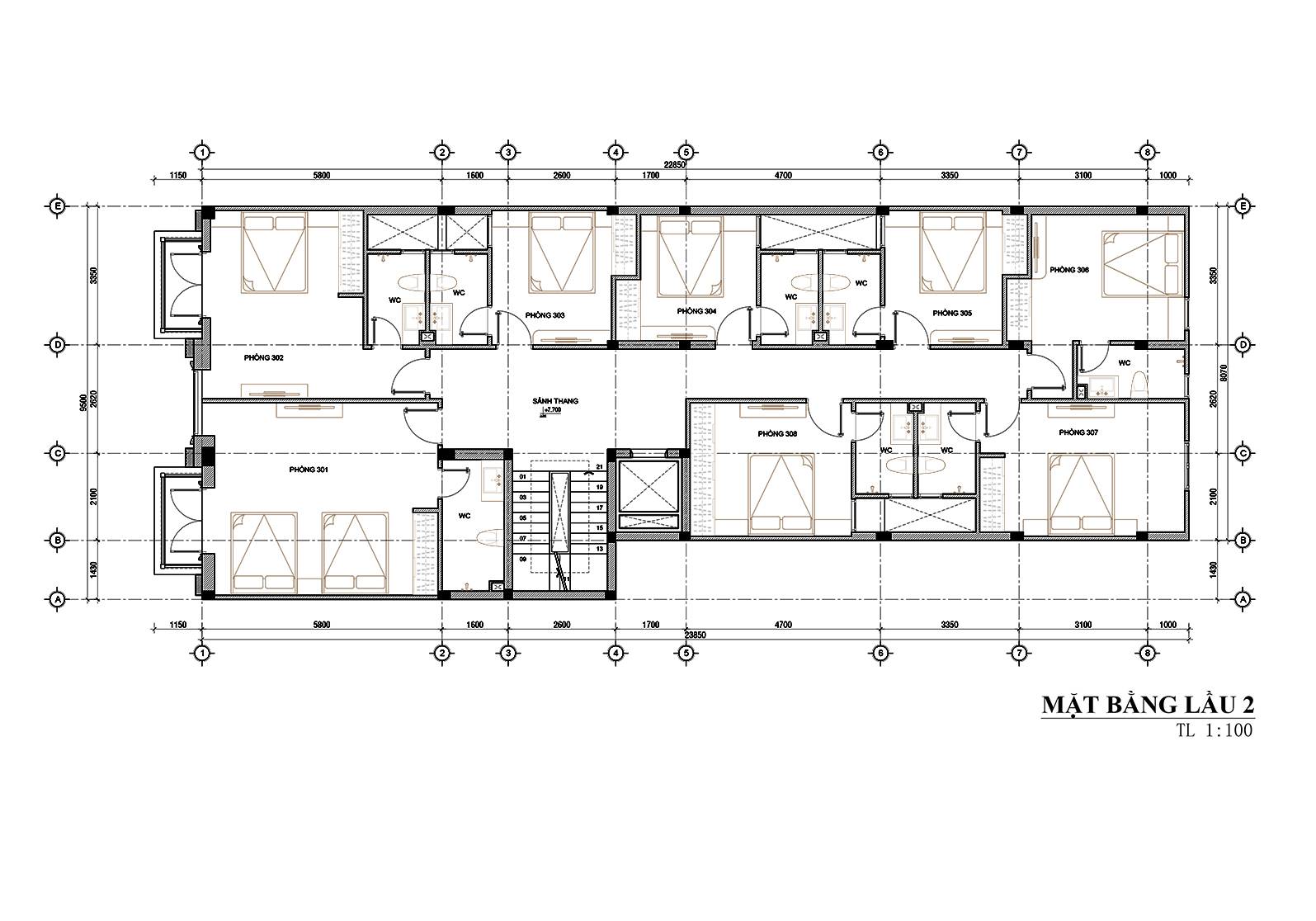
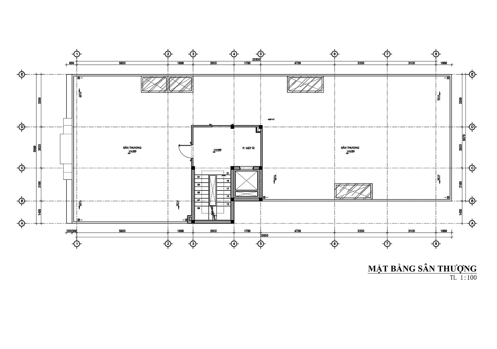
Bố trí mặt bằng công năng khách sạn tân cổ điển
Sau khi đã chiêm ngưỡng phối cảnh 3D của khách sạn thì phần mặt bằng công năng dưới đây sẽ khiến cho các bạn khó có thể từ chối một bản thiết kế hoàn mỹ như vậy.Tầng trệt

Lầu 1 và lầu 2


Lầu 3

Sân thượng


Số lần xem: 33











