- Chủ đầu tư: Anh Nhật
- Địa chỉ Đồng Nai
- Diện tích: 8x16 m
- Mã số: 8797
Hình ảnh khách sạn phong cách hiện đại, sang trọng
Khách sạn là loại hình kinh doanh dịch vụ đang rất phát triển hiện nay vì vậy nhu cầu thiết kế loại công trình này đang có xu hướng tăng cao. Một trong các phong cách được nhiều chủ đầu tư yêu thích nhất đó chính là phong cách hiện đại. Với vẻ đẹp sang trọng, công năng tiện nghi và chi phí đầu tư hợp lý khách sạn phong cách hiện đại ngày càng được nhiều chủ đầu tư lựa chọn. Bài viết sau đây Nhà Đẹp Mới sẽ giới thiệu với các bạn mẫu thiết kế khách sạn dành cho gia đình anh Nhật tại Đồng Nai.
Thông tin cơ bản mẫu khách sạn phong cách hiện đại
| Chủ đầu tư | Anh Nhật |
| Địa chỉ | Đồng Nai |
| Phong cách | Khách sạn phong cách hiện đại |
| Số tầng | 1 trệt, 3 lầu, sân thượng |
| Diện tích | 8x16 m |
| Đơn vị thiết kế | Nhà Đẹp Mới |
| Năm thiết kế | 2022 |
| Công năng | Số tầng: 1 trệt, 3 lầu, sân thượng, mái bê tông Số phòng: 17 phòng , 1 phòng bếp, Khu sảnh đón |
Ý tưởng thiết kế khách sạn hiện đại
Anh Nhật có ý định kinh doanh khách sạn trên mảnh đất của gia đình tuy nhiên anh khá băn khoăn trong việc lựa chọn phong cách thiết kế. Do đó anh đã liên hệ với Nhà Đẹp Mới để được tư vấn và tham khảo các mẫu thiết kế đang được yêu thích hiện nay.
Phối cảnh 3D ngoại thất thiết kế khách sạn phong cách hiện đại
Mẫu khách sạn theo phong cách hiện đại được thiết kế rất đơn giản không cầu kỳ như phong cách cổ điển nhưng vẫn có thể gây ấn tượng với vẻ đẹp sang trọng cực kỳ cuốn hút. Các mảng tường, các khối trụ của khách sạn được thiết kế vuông vắn, khỏe khoắn và tinh tế góp phần làm tăng tính thẩm mỹ cho ngoại thất.

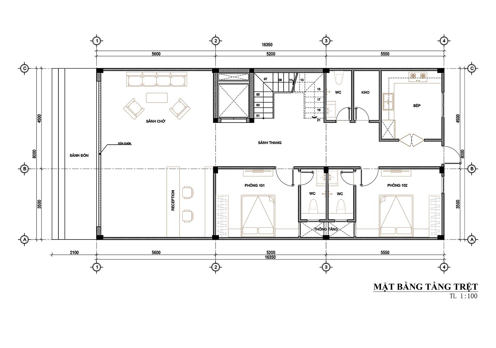
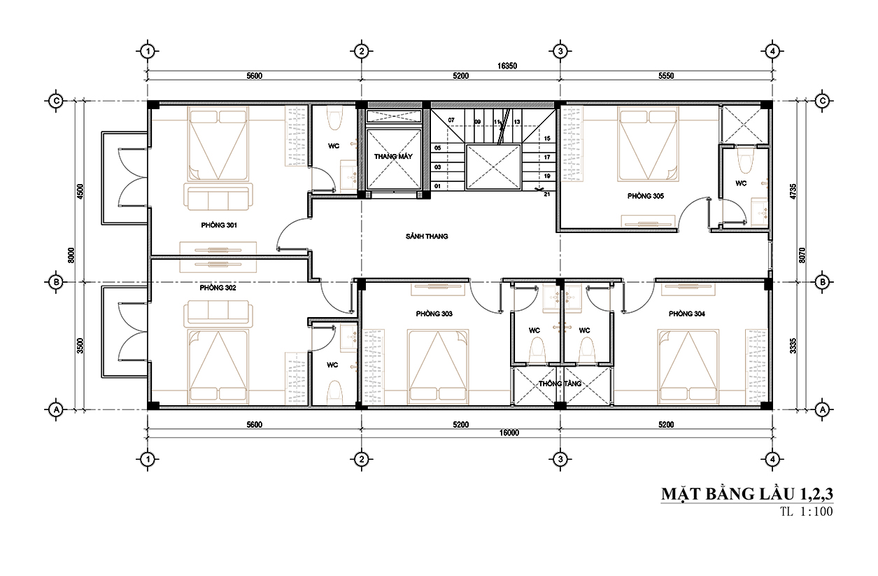
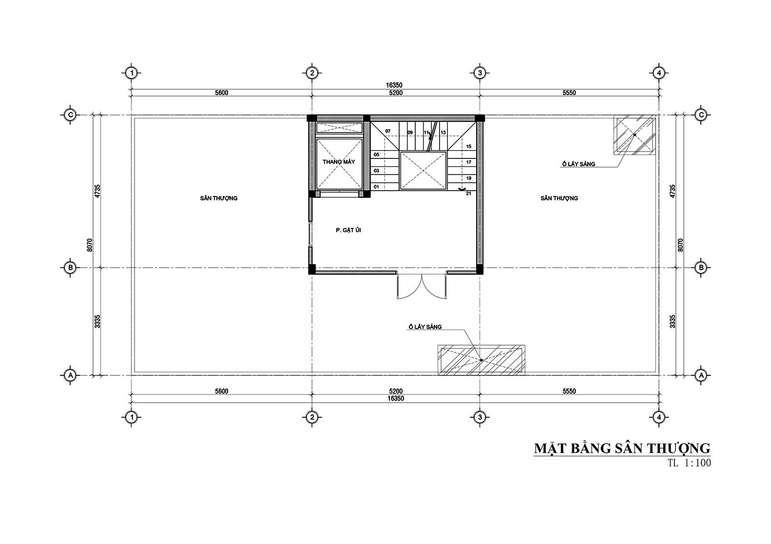
Mặt bằng công năng khách sạn
Sau đây phương án bố trí mặt bằng công năng khách sạn mà KTS Nhà Đẹp Mới đã thiết kế mời các bạn tham khảo:Tầng trệt

Lầu 1, 2, 3

Sân thượng


Số lần xem: 35











