- Chủ đầu tư: Mr Bằng
- Địa chỉ Phú Quốc
- Diện tích: 140
- Mã số: 908
Thông tin thiết kế khách sạn theo tiêu chuẩn 3 sao 6 tầng đẹp
- Dự án thiết kế khách sạn mini mặt tiền 7m đẹp
- Kiến trúc 1 trệt 1 lửng 4 lầu 1 sân thượng
- Diện tích sàn 140m2 = 7x20
- Mặt tiền phong cách châu âu bán cổ điển
- Chủ đầu tư: Anh Bằng
- Phụ trách hồ sơ: KTS Cao
Mặt bằng khách sạn mini 7x20m 6 tầng anh Bằng
Mẫu thiết kế khách sạn bán cổ điển đẹp 140m2 sàn thiết kế có tầng hầm nổi dành riêng cho ô tô và phòng bảo vệ. Tầng lửng làm phòng nghỉ cho nhân viên và phòng chờ lễ tân.. Anh chị tham khảo các mặt bằng khách sạn mini từ dưới lên trên xem cách bố trí của Kiến trúc sư NHÀ ĐẸP MỚI mình
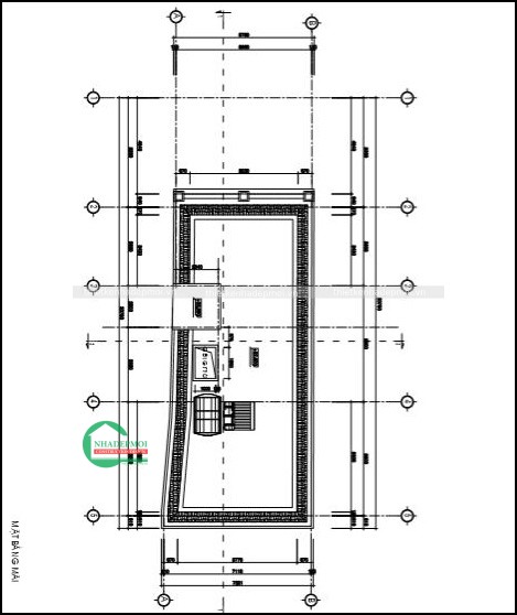
Bản vẽ thiết kế khách sạn có tầng hầm nổi 1 7x20
Mặt bằng khách sạn có tầng hầm nổi 7X20 thiết kế có thang máy và phòng nghỉ nhân viên bảo vệ. Ngoài để được xe máy ra còn để được 5 chiếc ô tô cho nhân viên và khách. Bản vẽ như sau
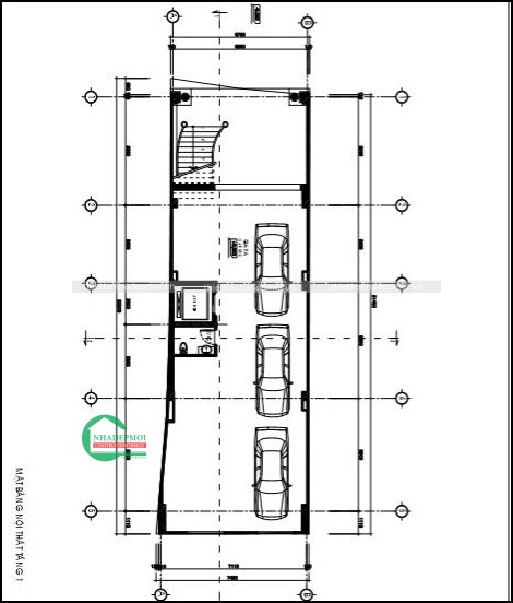
Mặt bằng khách sạn có tầng lửng
- Phòng khách + Lễ tân rộng 42m2
- Phòng ngủ nhân viên 2 giường đôi rộng 21m2
- Phòng bếp nấu và bàn soạn 16.5m2
- Khu vực còn lại cầu thang bộ và cầu thang máy
Mặt bằng khách sạn mini tiêu chuẩn 3 sao các lầu
Mỗi tầng có 5 phòng thiết kế như sau- Phòng ngủ 1 23m2
- Phòng ngủ 2 20m2
- Phòng ngủ 2 16m2
- Phòng ngủ 4 15,6m2
- Phòng ngủ gần 16m2
Mặt bằng khách sạn mini có tầng tum sân thượng kinh doanh cà phê
- Quầy cafe lễ tân trong nhà 22.5m2
- Khu vực cà fe ngoài trời 65m2
- Phòng thờ 6.5m2
- Sân phơi 20m2
- Vệ sinh chung 3.8m2
Thông tin thêm về mẫu khách sạn mini 6 tầng bán cổ điển mặt tiền 7m phố
Hồ sơ thiết kế khách sạn 6 tầng mặt tiền 7m bán cổ điển châu âu kiến trúc đẹp. Vợ chồng anh Bằng lấy tên chính của 2 con trai anh là Bảo và Ngọc. Tên công trình theo giấy phép kinh doanh là Bảo Ngọc Hotel. Hiện hồ sơ pháp lý hiện hành và các khâu liên quan đã hoàn tất. bao gồm cả giấy phép phòng cháy chữa cháy do công an ấp riêng.
Ngoài ra anh chị cần kinh doanh dịch vụ không khói các mô hình nhà hàng + khách sạn. Anh chị vui lòng tham khảo thêm ở ĐƯỜNG DẪN NÀY để mà biết thêm thông tin hồ sơ năng lực cấp 3 của công ty xây dựng NHÀ ĐẸP MỚI chúng tôiSố lần xem: 14











