- Chủ đầu tư: Anh Hòa
- Địa chỉ Đà Nẵng
- Diện tích: 137
- Mã số: 1156
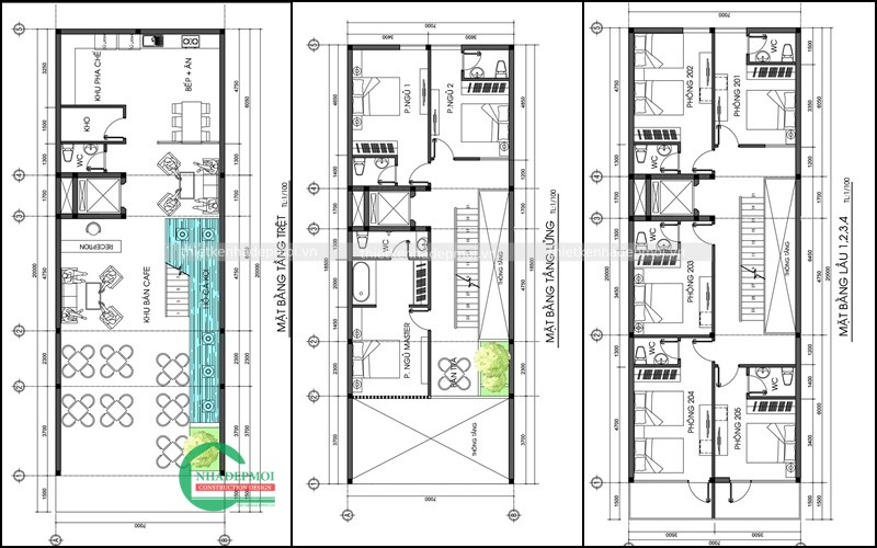
Ý tưởng thiết kế khách sạn mini tiêu chuẩn 2 sao 6 tầng 7x20m
Ý tưởng thiết kế khách sạn có tầng hầm thiết kế theo kiến trúc xanh. Thân thiện với môi trường theo quy hoạch của thành phố Đà Nẵng. Bản vẽ kiến trúc xây dựng trên đất 7x20 khá hẹp và bị khống chế chiều cao. Nên chỉ được phép xây 7 tầng đổ lại và tiêu chuẩn khách sạn 2 sao. Tuy vậy khách sạch Suri có nội thất trang trí Vip bên trong không thua gì khách sạn 3 đến 5 sao khác
Mẫu nhà nghỉ đẹp mới nhất thiết kế theo phong cách hiện đại mà Nhà Đẹp Mới thiết kế với kiểu lệch tầng theo mô hình tiêu chuẩn thiết kế khách sạn 3 sao. Phía ngoài có ban công hóng gió mát và ngắm cảnh nhìn ra bán đảo Sơn Trà và biển Đông. Thông tin bản vẽ khách sạn 2 sao mini 6 tầng
Mặt tiền khách sạn 6 tầng 7m đẹp thiết kế có hình khối so le. Kiến trúc mái bằng thiết kế nhấn nhá cho mảng mặt tiền ấn tượng không bị thô cứng. Đây là mẫu khách sạn 2 sao mini đẹp nhưng có thể coi là nhà nghỉ hiện đại cao cấp cũng được.- Dự án thiết kế nhà nghỉ hiện đại kiểu châu âu
- Chủ đầu tư: Anh Hòa – sống tại TP HCM
- Địa điểm xây dựng: TĐC Đông Hải – Hòa Hải – Ngũ Hành Sơn
- Trục đường: Nguyễn Phạm Tuân
- Diện tích đất: 7×20
- Quy mô xây dựng: 1 trệt 1 lửng 4 lầu 1 sân thượng 6 tầng
- Tổng diện tích sàn: 800m2
- Chi phí đầu tư hoàn thiện: 5,5 tỷ
- Thiết kế: KTS Thanh cùng các cộng sự
- Năm thiết kế xây dựng: 2019
- Thời gian hoàn thành dự kiến: 8 tháng đưa vào sử dụng kinh doanh
- Hình thức: Chìa khóa trao tay trọn gói
- Mật độ xây dựng: 94%

Xem thêm các mẫu thiết kế khách sạn 2 3 sao mặt tiền 6m đến 8m khác
Ngoài mẫu thiết kế khách sạn 6 tầng 2 sao diện tích 7×20 đẹp chúng tôi còn có các kiểu kiến trúc nhà nghỉ khác- Thiết kế khách sạn 7 tầng
- Mẫu khách sạn tân cổ điển
- Khách sạn tiêu chuẩn 3 sao
- Khách sạn 8 tầng 6xx25 anh Ký
Các bạn có thể xem thêm các phong cách kiến trúc khách sạn 5 tầng đến 8 tầng trở lên của công ty xây dựng chúng tôi để tham khảo thêm các phương án bản vẽ nhé. Thân ái.!Số lần xem: 14











