- Chủ đầu tư: Anh Quyết
- Địa chỉ Đồng Nai
- Diện tích: 8x15 m2
- Mã số: 7176
Hình ảnh biệt thự phố 2 tầng mái lệch
Mẫu nhà mái lệch đang ngày càng được nhiều gia đình trẻ ưa chuộng hiện nay. Thiết kế mái lệch mang đến vẻ đẹp trẻ trung, phóng khoáng và đầy cá tính cho căn nhà. Bên cạnh đó còn có khả năng thoát nước tốt, tính thẩm mỹ cao, tiết kiệm tối ưu chi phí xây dựng và đáp ứng công năng sinh hoạt tiện nghi. Ngay bây giờ hãy cùng thưởng lãm biệt thự phố 2 tầng mái lệch đẹp nhất năm 2021 do Nhà Đẹp Mới thiết kế và thi công đang được rất nhiều chủ đầu tư yêu thích.
Thông tin cơ bản thiết kế kiểu nhà mái lệch 2 tầng
| Chủ đầu tư | Anh Quyết |
| Địa chỉ | Đồng Nai |
| Phong cách | Biệt thự phố mái lệch |
| Số tầng | 2 tầng |
| Diện tích | 8x15 m2 |
| Đơn vị thiết kế | Nhà Đẹp Mới |
| Năm thiết kế | 2021 |
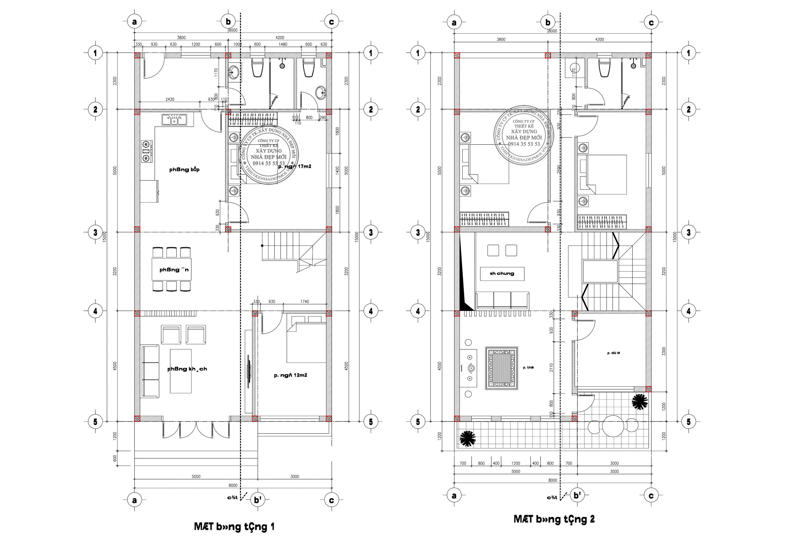
| Công năng | Tầng 1: 1 phòng khách, phòng bếp, 2 phòng ngủ, 2 nhà vệ sinh, sân sau Tầng 2: Phòng thờ, 1 phòng sinh hoạt chung, 1 nhà vệ sinh, sân sau |
Yêu cầu thiết kế biệt thự phố 2 tầng mái lệch
Anh Quyết yêu thích kiến trúc hiện đại và mong muốn ngôi nhà của mình được thiết kế với phong cách mới lạ so với những ngôi nhà xung quanh. Anh không thích các chi tiết hoa văn rườm rà gây rối mắt, cách trang trí mang đến vẻ đẹp đơn giản và tinh tế là yêu cầu hàng đầu. Ngoài ra một yêu cầu quan trọng nữa là không gian sinh hoạt phải thật thoải mái, thoáng mát và tiện nghi cho cả gia đình.
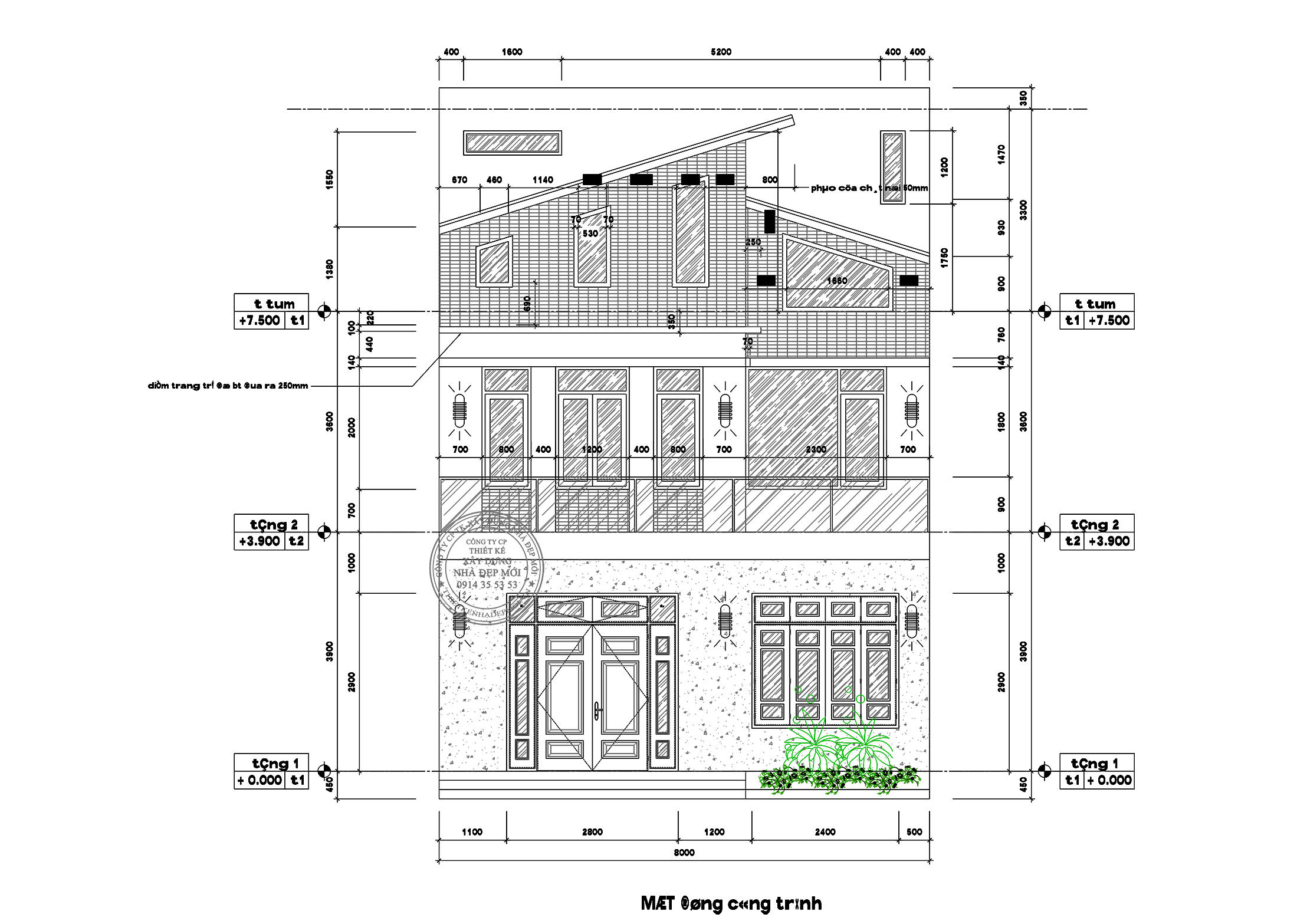
Phối cảnh ngoại thất 3D biệt thự mái thái lệch 2 tầng
Điểm độc đáo và ấn tượng nhất của căn biệt thự thu hút được mọi ánh nhìn chính là thiết kế biến tấu với hệ mái lệch cực kỳ phong cách và cá tính. Kiểu nhà mái thái mái lệch đảm bảo công năng chống nắng, mưa, bão và bảo vệ không gian nội thất hiệu quả. Đặc biệt với thiết kế mái lệch mang đến sự khỏe khoắn, vững chãi cho căn biệt thự.
Bố trí công năng sinh hoạt biệt thự mái lệch 2 tầng
Công năng sinh hoạt của biệt thự phố 2 tầng mái lệch được thiết kế đáp ứng nhu cầu sử dụng của gia đình anh Quyết.
Tầng 1

Tầng 2

Số lần xem: 15











