- Chủ đầu tư: Chị Vy
- Địa chỉ Lâm Đồng
- Diện tích: 16x14m
- Mã số: 6409

Thông tin chi tiết thiết kế biệt thự hiện đại mái Nhật
| Chủ đầu tư | Chị Vy |
| Địa chỉ | Lâm Đồng |
| Phong cách | Biệt thự hiện đại mái Nhật |
| Số tầng | 3 tầng |
| Diện tích | 16x14m |
| Đơn vị thiết kế | Nhà Đẹp Mới |
| Năm thiết kế | 2021 |
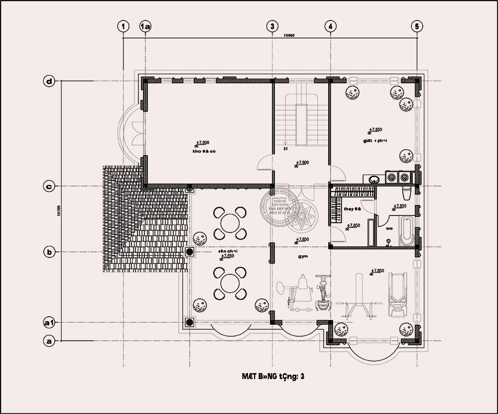
| Công năng | Tầng 1: Sảnh, Phòng khách, phòng thờ, phòng bếp, phòng ngủ, 2 phòng vệ sinh Tầng 2: 3 phòng ngủ, 3 phòng vệ sinh, phòng sinh hoạt chung Tầng 3: Phòng gym, kho, khu giặt phơi, sân chơi, 1 phòng vệ sinh. |

Khám phá mặt tiền biệt thự mái thái 3 tầng



Mô tả mặt bằng biệt thự mini 3 tầng mái Nhật
Mặt tiền của căn biệt thự quả là một “kiệt tác” nghệ thuật mà KTS Nhà Đẹp Mới đã dành tâm huyết thiết kế. Vậy mặt bằng không gian bên trong căn nhà như thế nào chúng ta sẽ cùng khám phá tiếp nhé.Tầng 1

Tầng 2

Tầng 3

Số lần xem: 14











