- Chủ đầu tư: Phạm Thị Thanh Lan
- Địa chỉ cần thơ
- Diện tích: 15x14m(200)
- Mã số: 269
Thông tin phối cảnh kiến trúc mặt bằng mẫu biệt thự 1 trệt 2 lầu

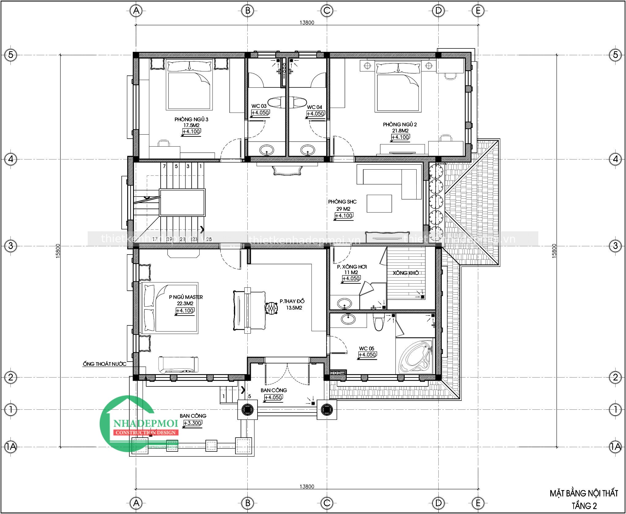
Thông số dự án kiến trúc biệt thự tân cổ điển
Dự án thiết kế biệt thự tân cổ điển 1 trệt 2 lầu- Chủ đầu tư: Phạm Thị Thanh Lan
- Diện tích thiết kế xây dựng: 15x14m
- Công năng sử dụng: 1 phòng khách , 1 bếp ăn
- 5 phòng ngủ 1 phòng thờ
- Phòng sinh hoạt chung, phòng đa năng, 7 phòng vệ sinh
- Phụ trách hồ sơ: KTS Lê Xuân Đức




Mọi chi tiết xin vui lòng liên hệ Thiết kế nhà đẹp mới qua số hotline 0914 355 353. Anh chị cần thêm hình ảnh mẫu nhà đẹp biệt thự ngang 14m dài 15m này liên hệ gửi hình ảnh thực tế cho xem. ➡️Tham khảo thêm: Biệt thự phố 3 tầng 2 mặt tiền 1 trệt 2 lầu 1 tum nhà anh Tạo Số lần xem: 15











