Xem nhanh
- Chủ đầu tư: Chú Ân
- Địa chỉ Bình Phước
- Diện tích: 13,3x16,9m2
- Mã số: 7089
Hình ảnh nhà mái thái 1 tầng sân vườn
Mẫu nhà vườn 1 tầng luôn là mẫu nhà lý tưởng được ưa chuộng nhất tại nhiều vùng nông thôn hiện nay bởi đáp ứng đầy đủ công năng sinh hoạt. Đồng thời còn đảm bảo về tính thẩm mỹ, độ bền cao và đặc biệt là chi phí xây dựng cực kỳ hợp lý. Trong số những khách hàng của Nhà Đẹp Mới có không ít gia chủ yêu thích và lựa chọn mẫu nhà cấp 4 với không gian sống gần gũi thiên nhiên để cùng gia đình mình hưởng thụ cuộc sống thanh nhàn. Sau đây Nhà Đẹp Mới giới thiệu với các bạn thiết kế nhà mái thái 1 tầng hiện đại, sang trọng và ấm cúng, mời các bạn hãy cùng chiêm ngưỡng.
Thông tin cơ bản nhà mái thái sân vườn 1 tầng
| Chủ đầu tư | Chú Ân |
| Địa chỉ | Bình Phước |
| Phong cách | Nhà cấp 4 mái thái |
| Số tầng | 1 tầng |
| Diện tích | 13,3x16,9 m2 |
| Đơn vị thiết kế | Nhà Đẹp Mới |
| Năm thiết kế | 2021 |
| Công năng | 1 phòng khách, gian thờ, phòng bếp, 3 phòng ngủ, 2 nhà vệ sinh |
Ý tưởng thiết kế nhà mái thái 1 tầng
Chú Ân là người có tính cách giản dị và yêu thích cuộc sống thanh bình yên ả của vùng quê có thiên nhiên, cây cỏ bầu bạn. Vì vậy Chú ấp ủ mong muốn xây dựng một căn nhà khang trang với không gian sống thoải mái tiện nghi ngay trên mảnh đất Bình Phước yên bình cho cả gia đình.
Chiêm ngưỡng phối cảnh 3D chi tiết mẫu nhà trệt 1 tầng mái thái
Căn nhà cấp 4 nổi bật giữa không gian thiên nhiên yên bình với vẻ đẹp hiện đại không quá phô trương nhưng có thể thu hút mọi ánh mắt ngay từ cái nhìn đầu tiên. Mẫu nhà mái thái sân vườn sử dụng các hình khối kiến trúc đơn giản nhưng không kém phần độc đáo gây ấn tượng cho căn nhà. Những khối hình vuông vắn được phân chia tỷ lệ hợp lý cân đối khiến cho tổng thể ngôi nhà hài hòa, vững chãi mang đến cảm giác chắc chắn, khỏe khoắn và an toàn.
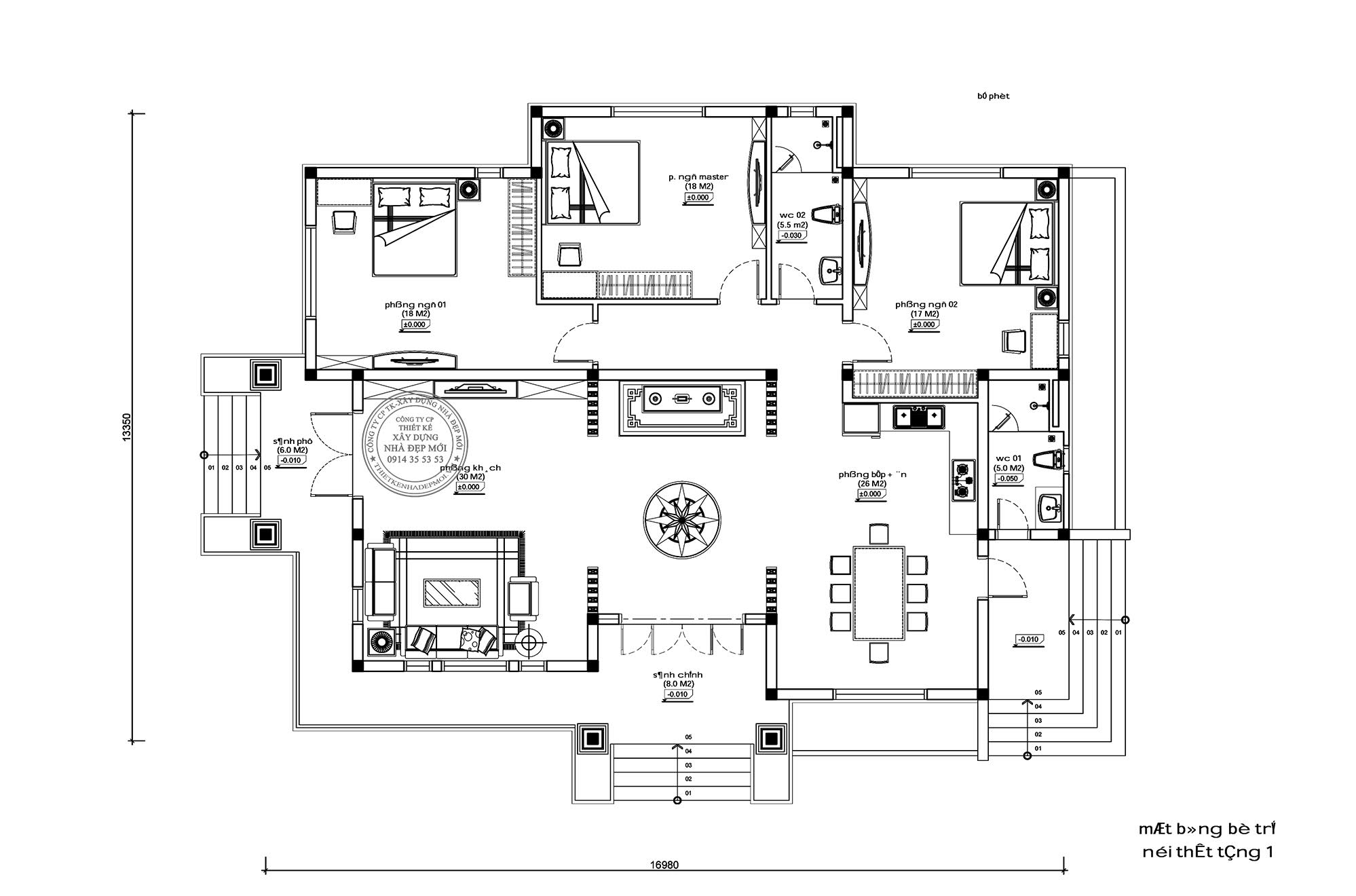
Sơ đồ bố trí công năng nhà mái thái 1 tầng
Nhà mái thái 1 tầng được KTS bố trí công năng bao gồm 1 phòng khách ở bên trái của sảnh chính và bên cạnh phòng khách có cửa phụ. Bàn thờ đặt ở chính giữa ngôi nhà với không gian trang trọng có vách ngăn.

Số lần xem: 32











