Xem nhanh
- Chủ đầu tư: Cô Tám
- Địa chỉ Bình Phước
- Diện tích: 18x25m2
- Mã số: 7189
Chi tiết mẫu nhà cấp 4 đẹp của Cô Tám
- Chủ đầu tư: Cô Tám
- Vị trí dự án: Bình Phước
- Loại hình xây dựng: Nhà cấp 4 mái thái
- Diện tích xây dựng: 18x25m2
- Đơn vị thiết kế: Thiết kế Nhà Đẹp Mới
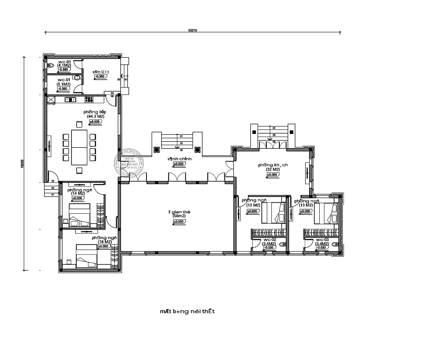
- Công năng: Phòng khách, Gian thờ, Phòng bếp, 4 Phòng ngủ, 4 WC, Sân sau
Phối cảnh đẳng cấp của mẫu nhà mái thái cấp 4
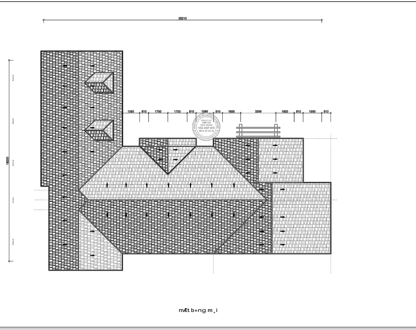
Phần móng của nhà được KTS lưu ý đổ cao, vì các ngôi nhà ở vùng ngoại ô có phần nền thấp sẽ dễ đọng nước mưa. Toàn bộ phần chân móng, bậc tam cấp lẫn hiên chính được ốp đá một cách đồng bộ, đảm bảo tổng thể không gian thống nhất nhưng không kém phần nổi bật. Phần mái nhà được thiết kế theo kiểu giật cấp chữ A, trang trí mái giả và có độ dốc tương đối cao để đảm bảo khả năng thoát nước cũng như đón thoáng vào mùa hè.
Mặt bằng công năng tiện nghi của mẫu nhà mái cấp 4


Số lần xem: 35











