Hotline: 0914 355 353 | Điện thoại: 0906 055 353 | Mail: dungtrannhadepmoi@gmail.com

  • Tìm kiếm
    Tìm kiếm

Mẫu nhà mái thái đẹp 3 tầng.

  • Diện tích: 5x13
  • Mã số: 1803
Mẫu nhà mái thái đẹp là sự lựa chọn của đại đa số khách hàng hiện nay. Mái thái lộ ra phần mái khi nhìn ngoài vào nên tạo thêm điểm nhấn cho ngôi nhà. Tuỳ theo loại và màu sắc ngói lợp, ngôi nhà của bạn sẽ mang phong cách hiện đại hoặc cổ điển. Đặc biệt, mẫu nhà mái thái có phần mái che làm bằng ngói và có độ nghiêng nên nước mưa không bị đọng. Những giọt mưa dễ dàng lăn từ viên ngói này đến viên ngói khác xuống phần rìa là máng xối. Chính vì thế, nhà mái thái hạn chế tình trạng thấm dột.

mẫu nhà mái thái đẹp

Mẫu thiết kế nhà mái thái lợp ngói đỏ truyền thống đang dần trở thành xu hướng của kiến trúc hiện đại. Nhà Đẹp Mới xin gửi đến quý khách một trong những mẫu nhà mái thái đẹp hơi hướng tân cổ điển và được ưa chuộng hiện nay.

mẫu nhà mái thái đẹp

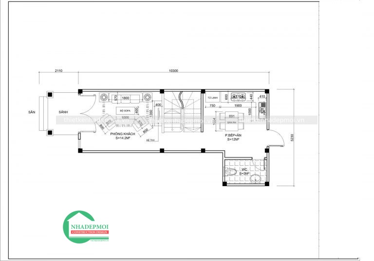
THIẾT KẾ MẶT TIỀN NHÀ MÁI THÁI  Mẫu nhà mái thái 3 tầng nên với những nét đặc sắc như: hoa văn đơn giản, cột trụ tròn trơn, lan can màu đồng, mái chéo phù hợp, phào chỉ, màu sơn trắng sang trọng. Sự kết hợp hài hòa này đã tạo nên vẻ đẹp mỹ miều của ngôi nhà. – THIẾT KẾ NHÀ MÁI THÁI ĐẸP TẦNG 1: Thiết kế mái thái đẹp tầng 1 là sảnh trước, 1 phòng khách, 1 phòng bếp + ăn, 1 nhà vệ sinh chung. Cầu thang được KTS chọn vị trí giữa nhà dùng để phân cách không gian riêng giữa bếp và phòng khách.

Mẫu nhà mái thái đẹp 3 tầng.

– THIẾT KẾ NHÀ MÁI THÁI ĐẸPTẦNG 2: Thiết kế mái thái đẹp tầng 2 gồm 3 phòng ngủ và 2 nhà vệ sinh. Thiết bị chủ yếu trong phòng ( giường đôi, tủ tường, bàn trang điểm ). KTS Nhà Đẹp Mới đã thiết kế sử dụng hết diện tích công năng tầng 2 theo yêu cầu gia chủ.

Mẫu nhà mái thái đẹp 3 tầng.

 THIẾT KẾ NHÀ MÁI THÁI ĐẸPTẦNG 3: Tầng 3 được thiết kế gồm: 1 phòng thờ, 1 phòng ngủ, 1 nhà vệ sinh, 1 sân phơi. Tất cả các phòng đều đáp ứng được toàn bộ nhu cầu sử dụng của gia chủ.

Mẫu nhà mái thái đẹp 3 tầng.

Để thiết kế một ngôi nhà đẹp và phù hợp với mỗi gia chủ là một vấn đề không dễ dàng biết được nhu cầu này, Công ty thiết kế xây dựng nhà đẹp mới không ngần ngại tư vấn nhiệt tình. Đối với mỗi công trình thi công chúng tôi đều thực hiện theo phương châm ” tỉ mỉ trong thiết kế – chất lượng ở thi công” từ đó làm nên hàng trăm nhà ở, biệt thự đẹp, văn phòng, khách sạn chất lượng trải dài trên toàn lãnh thổ đất nước. Nếu quý khách có nhu cầu thiết kế nhà mái thi công hãy liên hệ tới hotline 0914 35 53 53 để được tư vấn miễn phí. ➡️Tham khảo: THIẾT KẾ XÂY DỰNG MẪU NHÀ MÁI THÁI TẠI BÌNH DƯƠNG

Số lần xem: 4

Về chúng tôi
CÔNG TY CỔ PHẦN THIẾT KẾ XÂY DỰNG NHÀ ĐẸP MỚI
Add: 176/1 Lê Văn Sỹ, Phường 10, Phú Nhuận, HCM
Office 1: 38 Trương Quốc Dung, Quận Phú Nhuận
Hotline: 0914 355 353
Bộ Công Thương DMCA
Bản đồ công ty
  • Trực tuyến:
    1
  • Hôm nay:
    133
  • Tuần này:
    338
  • Tất cả:
    47019
Thiết kế website Webso.vn