- Chủ đầu tư: Chị Hiền
- Địa chỉ Biên Hòa
- Diện tích: 9x15
- Mã số: 1853
Khám phá mẫu nhà mái thái 2 tầng
Kiến trúc mái thái hiện đại với mặt tiền thoáng rộng mà vẫn đảm bảo được yếu tố phong thủy cho công trình. Khu vực sân trước sẽ được thiết kế với những chậu cây tiểu cảnh, được lựa chọn theo phong thủy hợp với tuổi của gia chủ cũng như hướng nhà.

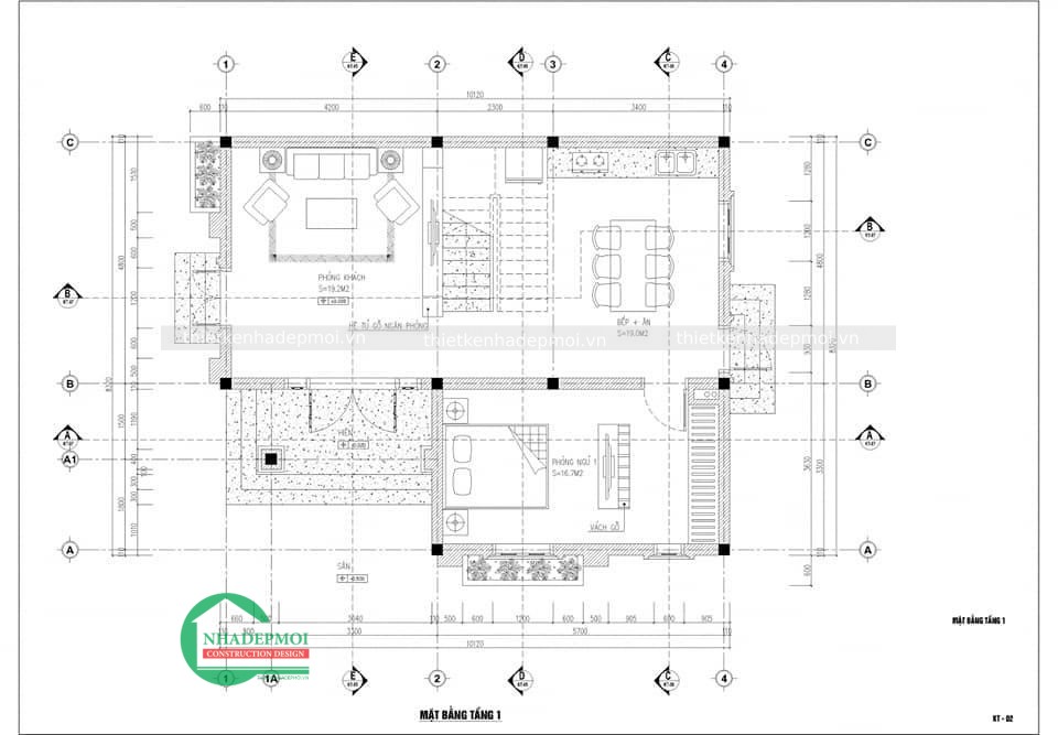
Mặt bằng công trình mẫu nhà mái thái 2 tầng
Công năng cơ bản của công trình nhà kiểu thái bao gồm 4 phòng ngủ, 1 phòng khách, một phòng ăn + bếp và 1 nhà vệ sinh. Chi tiết về thiết kế như thế nào, hãy tiếp tục cùng Nhà Đẹp Mới khám phá nhé.Thiết kế nhà mái thái đẹp tầng 1
Thiết kế của mẫu nhà mái thái tại tầng 1 sẽ bao gồm là sảnh trước (sảnh chính) và sảnh phụ (phía cánh phải ngôi nhà), 01 phòng khách, 01 phòng bếp + ăn, 01 phòng ngủ, ngoài ra còn có cửa phụ ra phía sau. Cầu thang được KTS chọn vị trí giữa nhà dùng để phân cách không gian riêng giữa bếp và phòng khách.
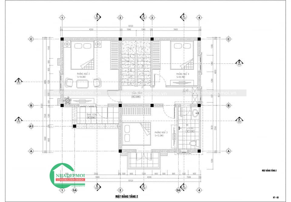
Thiết kế nhà mái thái tầng 2
Thiết kế mái thái tại tầng 2 bao gồm gồm 03 phòng ngủ và 01 nhà vệ sinh. Thiết bị chủ yếu trong phòng ngủ là giường đôi, tủ tường, bàn trang điểm. KTS Nhà Đẹp Mới đã thiết kế sử dụng hết diện tích công năng tầng 2 theo yêu cầu gia chủ. Tại phòng ngủ số 3 sẽ có một ban công khá rộng, tạo điểm nhấn cho công trình.
Thiết kế mẫu nhà mái thái đẹp 2 tầng
Để sở hữu một ngôi nhà đẹp và phù hợp với gia chủ không phải là điều đơn giản. Hiểu được mong muốn và nguyện vọng của đông đảo khách hàng hiện nay, Công ty thiết kế xây dựng Nhà Đẹp Mới luôn sẵn sàng tư vấn và mang đến bạn những thông tin hữu ích nhất. Chúng tôi luôn làm việc với phương châm “tỉ mỉ trong thiết kế – chất lượng ở thi công”, đội ngũ KTS chuyên nghiệp với con mắt thẩm mỹ cao bắt kịp mọi xu hướng và một quy trình làm việc khoa học, Nhà Đẹp Mới tự tin mang đến cho khách hàng những mẫu thiết kế nhà ở chất lượng, độc đáo và ấn tượng nhất. Bất cứ khi nào bạn cần tư vấn hay thiết kế mẫu nhà mái thái đẹp, hãy liên hệ với chúng tôi qua hotline 0914 35 53 53 để được hỗ trợ nhanh chóng và chi tiết nhất. Nhà Đẹp mới luôn sẵn sàng đồng hành cùng bạn kiến tạo một công trình hoàn hảo nhất.Số lần xem: 15











