Xem nhanh
- Mã số: 4876
Phối cảnh thiết kế 3D mẫu nhà 2 tầng đẹp – Biệt thự mái thái ở Lâm Đồng.


Vật liệu sử dụng
Mẫu nhà mái thái 2 tầng được tọa lạc trên một khu đất rộng. Ngôi biệt thự được thiết kế tỉ mỉ và tinh tế trong việc kết hợp nhiều loại vật liệu khác nhau. Tạo nên nét kiến trúc rất riêng và độc đáo. Có thể nói, diện mạo của ngôi nhà là sự hội tụ một cách sáng tạo của phong cách kiến trúc hợp thời. Nó thể hiện trình độ chuyên môn và nỗ lực thấu hiểu khách hàng của các KTS Nhà Đẹp Mới. Đó cũng chính là lí do khiến anh Tú – chủ đầu tư hài lòng tuyệt đối với công trình của đời mình.- – Chủ nhà: Anh Tú
- – Địa chỉ: Lâm Đồng
- – Diện tích: 8x14m
- – Phong cách: Biệt thự mái thái hiện đại
- – Đơn vị tư vấn thiết kế: Nhà Đẹp Mới
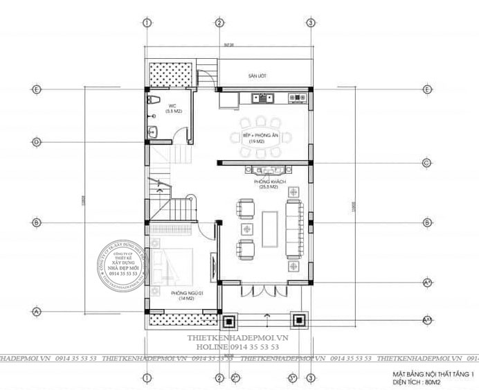
Mặt bằng công năng tầng 1
Mặt bằng công năng tầng 1 bao gồm: 1 phòng khách, 1 phòng bếp ăn, 1 phòng ngủ , 1 WC chung. Mẫu nhà mái Thái của anh Tài được thiết kế ngay sau phòng khách là phòng ăn. Đặc biệt phòng này có một khoảng vuông vắn ngay khi khách bước chân vào. Điều đó sẽ gây ấn tượng bởi sự đẳng cấp của gia chủ. Phòng khách tuy không quá rộng nhưng có nhiều không gian mở. Với cửa kính nhìn ra ngoài từ nhiều hướng khác nhau để tạo góc view rộng và đẹp mắt. Phòng bếp ăn Mẫu nhà 2 tầng được chia tách không gian với phòng khách. Bởi các vách ngăn nhẹ mang tính chất trang trí làm tăng thêm tính thẩm mỹ. Tạo không gian giao thông thoáng đãng cho ngôi nhà. Ở phòng ngủ đều có mặt tiếp xúc với bên ngoài và được ngăn cách bằng những ô cửa sổ mở rộng. Giúp căn phòng tận dụng được ánh sáng và không khí tự nhiên từ bên ngoài. Một WC vệ sinh chung thiết kế nhỏ gọn, bố trí phía sau nhà. Giúp tiết kiệm không gian và tiện lợi cho việc sinh hoạt.
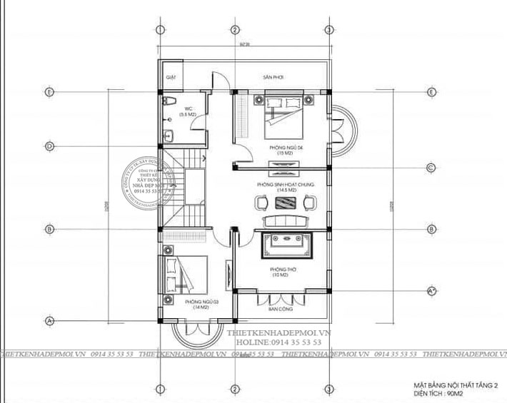
Mặt bằng công năng tầng 2
Mặt bằng công năng tầng 2 bao gồm: 1 phòng sinh hoạt chung, 2 phòng ngủ, 1 phòng thờ, 1 WC. Công năng tầng 2 mẫu nhà 2 tầng được thiết kế theo đúng yêu cầu của gia chủ. Đây là không gian nghỉ ngơi, thư giãn. Với thiên nhiên được đem vào chính trong căn phòng. Tất cả các phòng ngủ đều có không gian tiếp xúc với bên ngoài qua hệ thống cửa kính. Phòng sinh hoạt chung dành để nghỉ ngơi nhẹ nhàng như xem phim, đọc sách, thưởng trà và quây quần cùng gia đình. Do đó được thiết kế hầu hết là không gian mở sẽ mang lại sự thư thái và vui vẻ.
Số lần xem: 13











